EasyManua.ls Logo

Indesit VRH 600 C - Kochfeld; Installation

Indesit VRH 600 C
48 pages
Print Icon
To Next Page IconTo Next Page
To Next Page IconTo Next Page
To Previous Page IconTo Previous Page
To Previous Page IconTo Previous Page
Loading...
22
DE
Installation
! Bewahren Sie diese Bedienungsanleitung bitte
sorgfältig auf, damit Sie sie jederzeit zu Rate ziehen
können. Sorgen Sie dafür, dass sie im Falle eines
Verkaufs, eines Umzugs oder einer Übergabe an
einen anderen Benutzer das Gerät stets begleitet,
damit auch der Nachbesitzer die Möglichkeit hat, darin
nachschlagen zu können.
! Lesen Sie bitte die nachfolgenden Hinweise
aufmerksam durch: sie liefern wichtige Informationen
hinsichtlich der Installation, des Gebrauchs und der
Sicherheit.
Posizionamento
! Verpackungsmaterial ist kein Spielzeug für Kinder.
Es ist entsprechend den Vorschriften zur getrennten
Müllsammlung zu entsorgen (siehe Vorsichtsmaßregeln
und Hinweise).
! Die Installation ist gemäß den vorliegenden
Anweisungen und von Fachpersonal durchzuführen.
Jede unsachgemäße Installation kann Menschen und
Tiere gefährden oder Sachschaden verursachen.
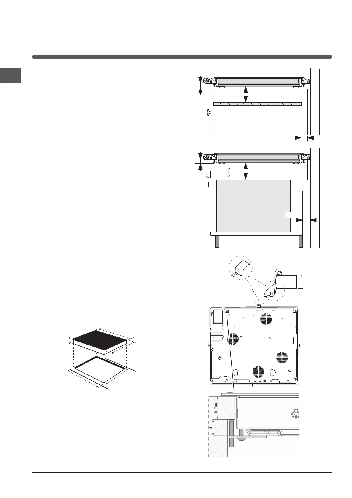
Einbau
Um eine einwandfreie Betriebsweise des Gerätes zu
gewährleisten, muss der Umbauschrank folgende
Eigenschaften aufweisen:
Die Auflagefläche muss aus hitzebeständigem
Material beschaffen sein, um einer Temperatur von
ca. 100°C standzuhalten.
Soll das Kochfeld über einem Backofen installiert
werden, muss letzterer mit einem Kühlsystem mit
Zwangsbelüftung ausgestattet sein.
Von der Installation eines Kochfeldes über einem
Geschirrspüler wird abgeraten. Gegebenenfalls ist
zur Abdichtung ein Zwischenteil zwischen beiden
Geräten zu installieren.
Je nach dem zu installierenden Kochfeld (siehe
Abbildungen) sind Arbeitsflächenausschnitte
folgender Abmessungen vorzusehen:
560 +/- 1
490 +/- 1
53
590
520
Belüftung
Zur ausreichenden Belüftung und zur Vermeidung
der Überhitzung der Flächen rund um das Gerät muss das
Kochfeld wie folgt positioniert werden:
in einem Abstand von mindestens 40 mm von
der dahinter liegenden Wand bzw. jeder anderen
vertikalen Fläche;
um einen Abstand von mindestens 20 mm zwischen
dem für den Einbau bestimmten Ausschnitt und dem
entsprechenden Unterschrank zu gewährleisten.
5 mm
min. 20 mm
min. 20 mm
min. 40 mm
WÄRMEFACH
5 mm
min. 40 mm
HEIßLUFT
FRONTSEITE DES
KOCHFELDES
AUFLAGEFLÄCHEAUFLAGEFLÄCHE
30
40
KOCHFELD
UMGEDREHT
AUFLAGEFLÄCHE

Related product manuals