EasyManua.ls Logo

Indesit VRH 600 C - Instalação

Indesit VRH 600 C
48 pages
Print Icon
To Next Page IconTo Next Page
To Next Page IconTo Next Page
To Previous Page IconTo Previous Page
To Previous Page IconTo Previous Page
Loading...
PT
17
Instalação
! É importante guardar este folheto para poder
consultá-lo a qualquer momento. No caso de venda,
cessão ou mudança, assegure-se que o mesmo
permanece com o aparelho para informar o novo
proprietário sobre o funcionamento e sobre as
respectivas advertências.
! Leia com atenção as instruções: há informações
importantes sobre a instalação, a utilização e a
segurança.
Posicionamento
! As embalagens não são brinquedos para as crianças
e devem ser eliminadas em conformidade com as
regras de colecta diferenciada (veja em Precauções e
Conselhos).
! A instalação deve ser realizada segundo estas
instruções e por pessoal profissional qualificado. Uma
instalação errada pode causar danos a pessoas,
animais ou objectos.
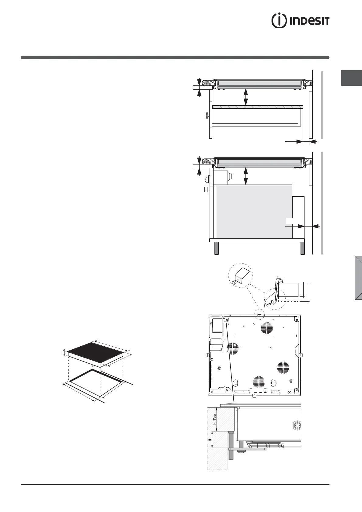
Encaixe
Para garantir um bom funcionamento do aparelho
é necessário que o móvel seja de características
adequadas.
o material do plano de apoio deve resistir a uma
temperatura de aproximadamente 100ºC;
se desejar instalar o plano de cozedura sobre um
forno, este deve ser equipado com de um sistema
de arrefecimento com ventilação forçada;
evite instalar o plano de cozedura sobre uma
máquina de lavar louça: se for faze-lo, instale um
elemento de separação entre os dois aparelhos
com retenção hermética;
conforme o plano de cozedura que desejar instalar
(veja  guras), o vão do móvel deverá ter as seguintes
dimensões:
560 +/- 1
490 +/- 1
53
590
520
Ventilação
Para consentir uma adequada ventilação e para evitar
o superaquecimento das superfícies ao redor do
aparelho, o plano de cozedura deve ser posicionado:
a uma distância mínima de 40 mm da parede de
trás ou de quaisquer outras superfícies verticais;
de forma a manter uma distância mínima de 20 mm
entre o vão para o encaixe e o móvel abaixo dele.
5 mm
min. 20 mm
min. 20 mm
min. 40 mm
CASSETTO
5 mm
min. 40 mm
FORNO
VENTILATO
LATO ANTERIORE
DEL PIANO COTTURA
PIANO DI
APPOGGIO
30
40
PIANO COTTURA
ROVESCIATO

Related product manuals