EasyManua.ls Logo

Indesit VRH 600 X - Page 43

Indesit VRH 600 X
48 pages
Print Icon
To Next Page IconTo Next Page
To Next Page IconTo Next Page
To Previous Page IconTo Previous Page
To Previous Page IconTo Previous Page
Loading...
RS
43
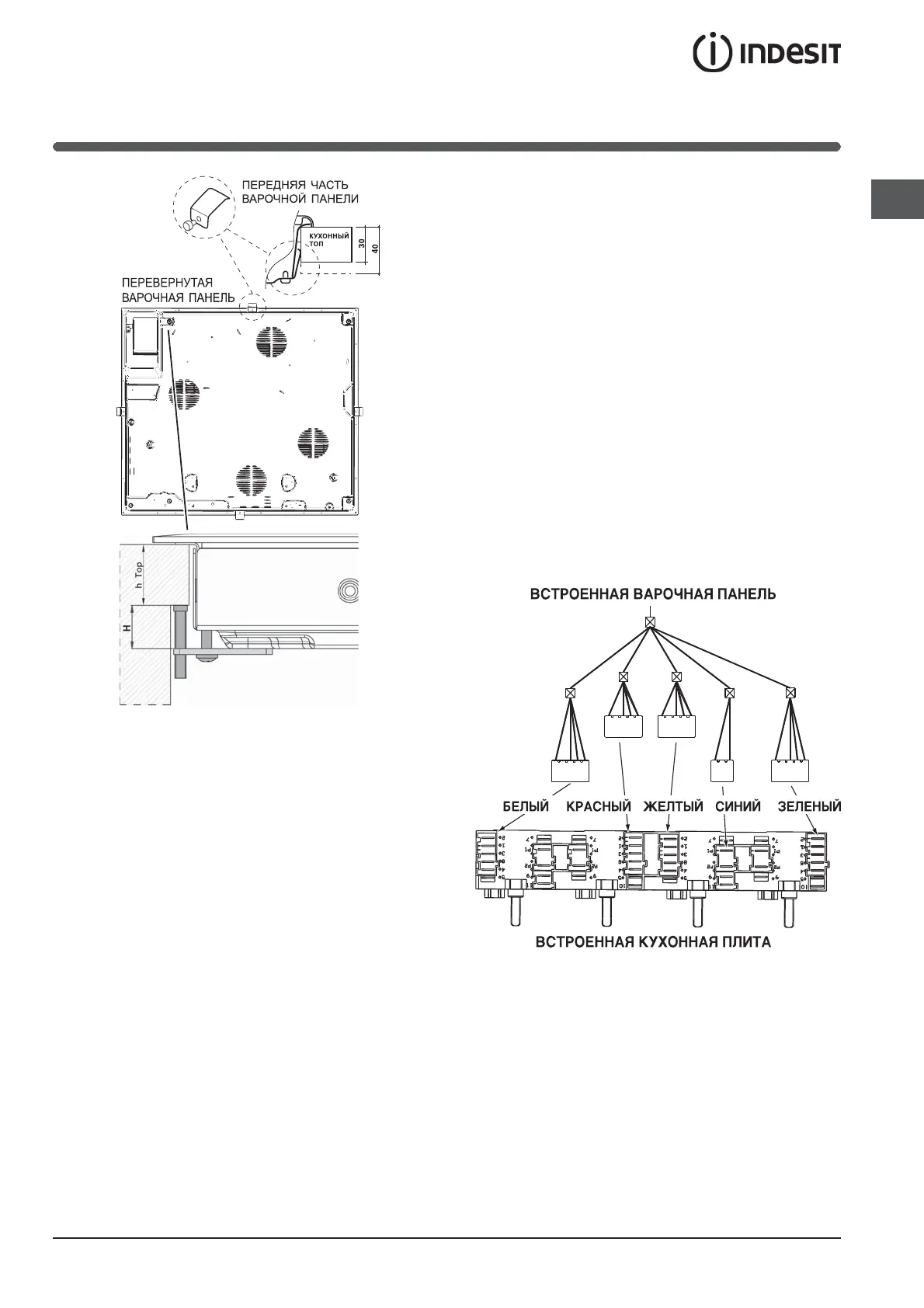
Крепление
Изделие должно быть установлено на идеально
ровнои поверхности.
Возможные деформации, вызванные неправильным
креплением, могут привести к изменениям
характеристик и эксплуатационных качеств
варочнои панели.
Длина регуляционного винта крепежных крюков
регулируется перед началом монтажа по толщине
кухонного топа:
толщина 30 мм: длина винта 17,5 мм;
толщина 40 мм: длина винта 7,5 мм;
Порядок крепления изделия:
1. При помощи коротких тупых шурупов
привинтите 4 центровочные пружины в отверстиях,
расположенных по бокам варочнои панели;
2. Вставьте варочную панель в проем в кухонном
модуле, выровняите и слегка нажмите в центр
вплодь до идеального
прилегания варочнои панели
к поверхности кухонного топа.
3. для варочных панелеи с боковыми профилями:
вставив варочную панели в нишу кухонного модуля,
вставьте 4 крепежных крюка (каждыи со своим
штифтом) по нижнему периметру варочнои панели,
закручивая их длинными острыми болтами до
тех пор, пока стекло не будет плотно прилегать к
кухонному топу.
! Важно, чтобы шурупы центровочных пружин
оставались доступными.
! В соответствии с правилами безопасности после
установки изделия в кухонныи модуль должна быть
исключена возможность касания к электрическими
частями.
! Все защитные элементы должны быть закреплены
таким образом, чтобы их можно было снять только
при помощи специального инструмента.
Соединение варочной панели с
духовым шкафом
Для эксплуатации данного изделия необходимо
соединить его со специальными духовыми
шкафами, перечень которых приводится в конверте
с технической документацией.
VRH 600 C - VRH 600 X - VRH 640 C - VRH 640 X -
VRH 60 C - VRH 60 X
VRH 641 D C - VRH 642 DO X