EasyManua.ls Logo

inform PDSP31010 - Page 19

inform PDSP31010
60 pages
Print Icon
To Next Page IconTo Next Page
To Next Page IconTo Next Page
To Previous Page IconTo Previous Page
To Previous Page IconTo Previous Page
Loading...
14
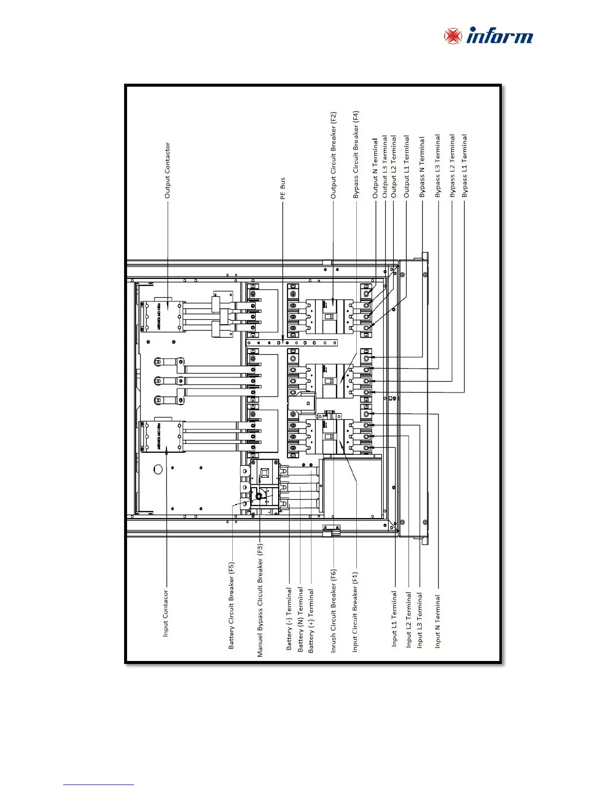
120kVA Terminal Connections
* Separate Bypass Terminal ( Bypass L1, L2, L3, N ) version is optional.

Related product manuals