EasyManua.ls Logo

Insignia NS-RTM10WH2-C - Setting up your refrigerator; Before using your refrigerator; Finding a suitable location

Insignia NS-RTM10WH2-C
21 pages
To Next Page IconTo Next Page
To Next Page IconTo Next Page
To Previous Page IconTo Previous Page
To Previous Page IconTo Previous Page
Loading...
www.insigniaproducts.com
7
10 Cu. Ft. Top Mount Refrigerator
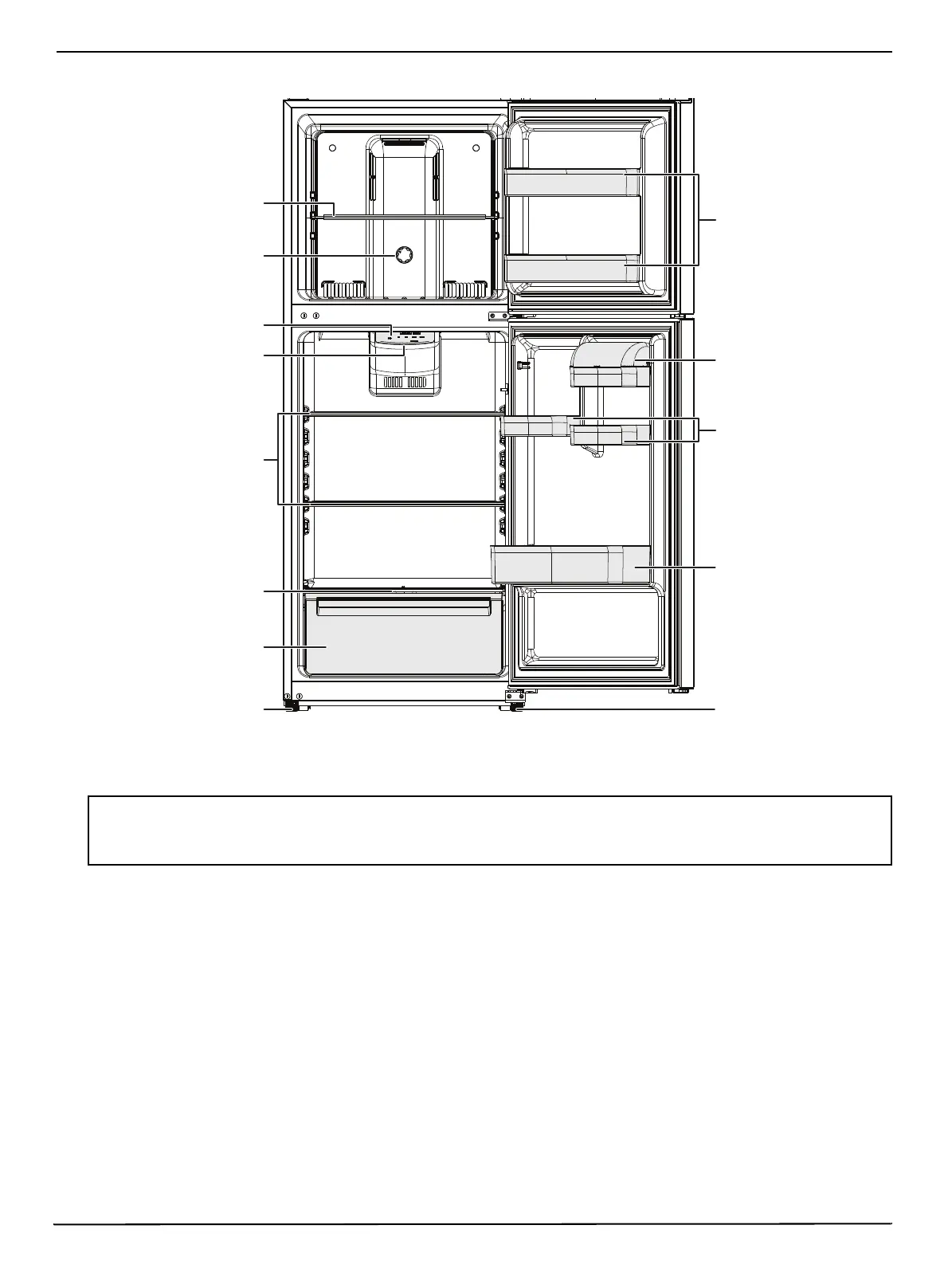
Interior
Setting up your refrigerator
Before using your refrigerator
Remove the exterior and interior packaging.
Wash the inside with a damp, warm cloth and a baking soda solution (two tablespoons in a quart [.94 l] of water), then
wipe dry with a dry cloth. Do this periodically to keep your refrigerator looking new.
Level your refrigerator using the leveling feet. If you do not level your refrigerator, the door may not close or seal
correctly, causing cooling, frost, and moisture problems. Turn the leveling feet clockwise to raise or counterclockwise to
lower a side.
Finding a suitable location
Place your refrigerator on a floor that is strong enough to support it when fully loaded.
Do not install your refrigerator on carpeting or a rug.
Your refrigerator is designed to be free standing and should not be recessed or built-in.
Do not install your refrigerator in a garage or any other outside installation.
Adjust the feet to keep your refrigerator level.
If you locate your refrigerator next to a fixed wall, allow sufficient space on the hinge side for the door to swing open.
Position your refrigerator away from direct sunlight and sources of heat, such as a stove, heater, or radiator. Direct
sunlight may affect the acrylic coating and heat sources may increase electrical consumption. Extremely cold
temperatures may also prevent your refrigerator from performing correctly.
CAUTION:
This refrigerator is heavy (over 116.8 lbs. [53 kg]). We recommend that two people be used to move it.
Before connecting this refrigerator to a power source, let it stand for approximately six hours to reduce the possibility of a
malfunction in the cooling system.
Crisper drawer
Bottle storage bin
Freezer shelf
Freezer temperature control
Refrigerator temperature control
Refrigerator shelves
Freezer door racks
Dairy compartment
Refrigerator door racks
LED light
Leveling foot
Leveling foot
Crisper humidity control

Other manuals for Insignia NS-RTM10WH2-C

Related product manuals