EasyManua.ls Logo

Intertek Logwood 2469E - Page 9

Intertek Logwood 2469E
24 pages
Print Icon
To Next Page IconTo Next Page
To Next Page IconTo Next Page
To Previous Page IconTo Previous Page
To Previous Page IconTo Previous Page
Loading...
-9-
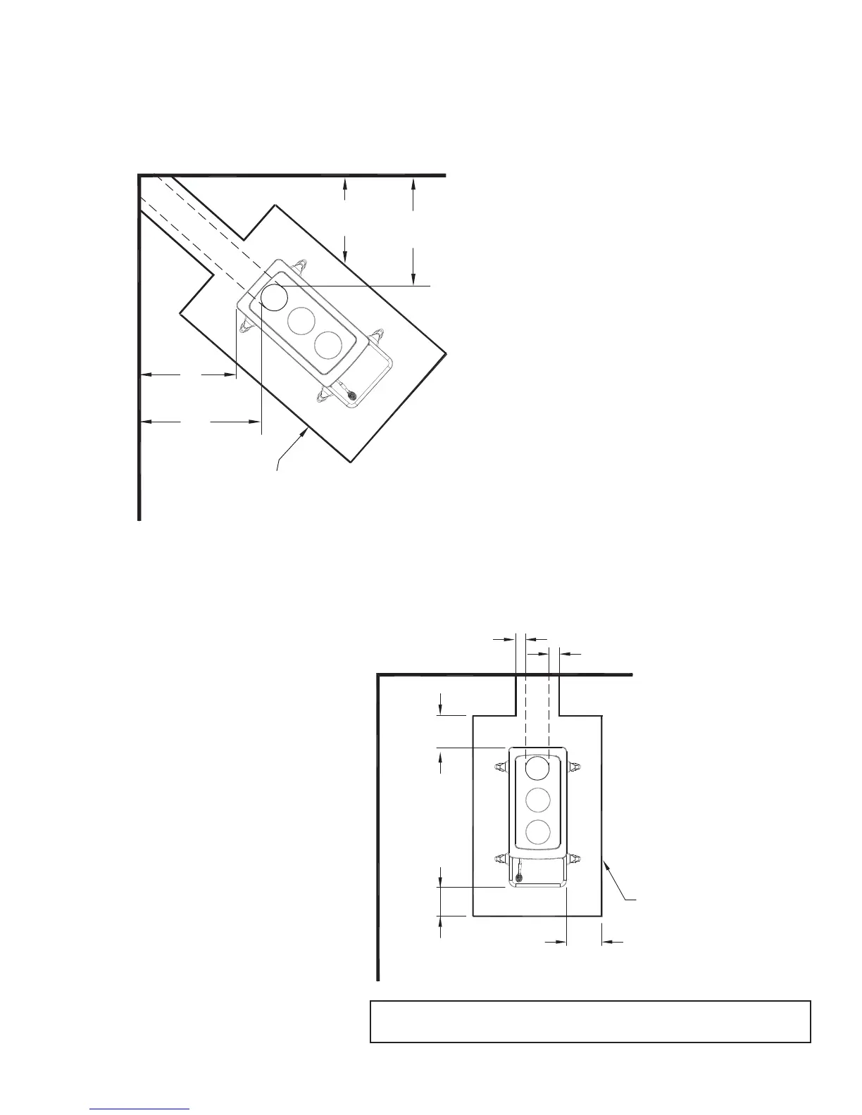
CAUTION: Keep furnishings and other combustible materials
away from the heater.
NON-COMBUSTIBLE CONSTRUCTION IN
ACCORDANCE WITH NFPA 211
18”
458mm
29“
737mm
24”
607mm
8”
203mm
84”MIN.
(2134mm)
15”
381mm
17.5”
445mm
15”
381mm
22”
559mm
15”
381mm
22”
559mm
Floor Protector/
Protection De Plancher
Floor Protector/
Protection De Plancher
Floor Protector/
Protection De Plancher
Floor Protector/
Protection De
Plancher
Non-combustible
construction in
accordance with NFPA
211 (USA) or CAN/CSA
B365-M91
(CANADA)
Construction
incombustible selon la
norme NFPA 211 (USA)
ou CAN/CSA B365-M91
(CANADA)
US 16”
(407mm)
Can. 18”
(458mm)
The floor
protector needs
to have an
r-value of 2.06
8”
(204mm)
2”
(51mm)
2”
(51mm)
18”
458mm
29“
737mm
24”
607mm
8”
203mm
84”MIN.
(2134mm)
15”
381mm
17.5”
445mm
15”
381mm
22”
559mm
15”
381mm
22”
559mm
Floor Protector/
Protection De Plancher
Floor Protector/
Protection De Plancher
Floor Protector/
Protection De Plancher
Floor Protector/
Protection De
Plancher
Non-combustible
construction in
accordance with NFPA
211 (USA) or CAN/CSA
B365-M91
(CANADA)
Construction
incombustible selon la
norme NFPA 211 (USA)
ou CAN/CSA B365-M91
(CANADA)
US 16”
(407mm)
Can. 18”
(458mm)
The floor
protector needs
to have an
r-value of 2.06
8”
(204mm)
2”
(51mm)
2”
(51mm)
4. The chimney connection should be as short as possible, and the heater must have its own ue. Do not
connect this unit to a chimney ue serving other appliances.
5. Use three sheet metal screws in each stove pipe and or elbow joint to rmly hold the pipe together. Seal
around the screws
6. Do not install this heater in a mobile home or trailer.
7. Check your local building and insurance codes. The installation must comply with their rulings.