EasyManua.ls Logo

iPower SUA2301i - Circuit Diagram

iPower SUA2301i
36 pages
Print Icon
To Next Page IconTo Next Page
To Next Page IconTo Next Page
To Previous Page IconTo Previous Page
To Previous Page IconTo Previous Page
Loading...
+
-
+
9A
Sub coil
DC coil
R/B
L/W
G
B
B
W W
Control
module
B
R
CONTROL PANEL
B
L
Br
B/W
Data
center
G/W
G
G/W
W
R
Y
Y
R/B
L/W
B
W
Y/G
LED light
DC voltage
regulator
rectifier
Parallel
Ports
20A
L5-30R
30A
5-20R
20A
ALTERNATOR
Y
Y
Fuel level
sensor
Stepping motor
L
P
Y
O
R
Main coil
B
GND
Br
R/W
B
B
Trigger
ENGINE
B
Br
R/W
Light coil
L
L
GND
Engine switch
Y
Low oil shutdown
module(sensor)
CO indicator light
(Red light, Yellow light)
Gy
Y
R
DC coil
Y/G
W
B/W
B/W
CO
sensor
module
Page 29
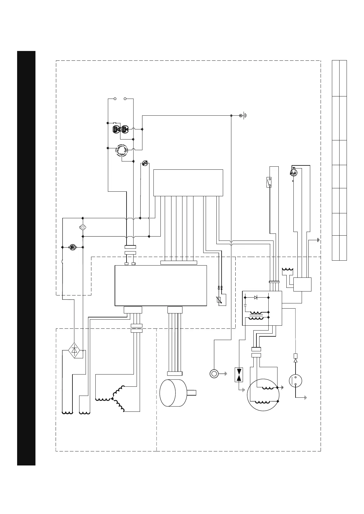
Circuit Diagram
CIRCUIT DIAGRAM
Model: SUA2301i
B:BLACK
Br:BROWN
G:GREEN
Gy:GRAY
L:BLUE
O:ORANGE
R:RED
W:WHITE
Y:YELLOW
P:PINK
B/W:BLACK/WHITE
Y/G:YELLOW/GREEN
R/W:RED/WHITE
Grounding system(AC): Neutral Floating Grounding system(DC): System Floating
12V
12V DC

Related product manuals