EasyManua.ls Logo

Isotherm COMPACT CLASSIC - Page 5

Isotherm COMPACT CLASSIC
22 pages
Print Icon
To Next Page IconTo Next Page
To Next Page IconTo Next Page
To Previous Page IconTo Previous Page
To Previous Page IconTo Previous Page
Loading...
L’apparecchio refrigerante Isotherm Compact Classic è
progettato specifi camente per l’installazione in frigoriferi
per imbarcazioni a vela o a motore. L’apparecchio è do-
tato di tutti i componenti necessari per il suo montaggio,
facilmente eseguibile senza l’uso di attrezzi particolari.
È già stato riempito in fabbrica con il refrigerante e viene
fornito pronto per l’uso. Per semplifi care l’installazione,
il sistema è diviso in due sezioni: il compressore/con-
densatore e l’evaporatore. Queste sezioni sono collegate
assieme mediante un tubo fl essibile munito di attacchi
rapidi che possono essere facilmente collegati e scol-
legati ripetutamente senza alcuna perdita di refrigerante.
Per ottonere buoni risultati di funzionamento, è essen-
ziale quanto segue:
● Il frigorifero dev’essere ben isolato. Usare una schiuma
poliuretanica o simile di 30 mm di spessore per apparec-
chi da 50 litri, di 50 mm per apparecchi fi no ad 80 litri e di
100 mm o maggiore per apparecchi più grandi.
● La capacità della batteria dev’essere di almeno 75 Ah
per consentire l’accumulo di energia suffi ciente durante
il funzionamento del motore.
● Tutti i dispositivi di alimentazione elettrica, come
l’alternatore, il regolatore, i cavi, i connettori e le batterie
devono essere mantenuti in buone condizioni.
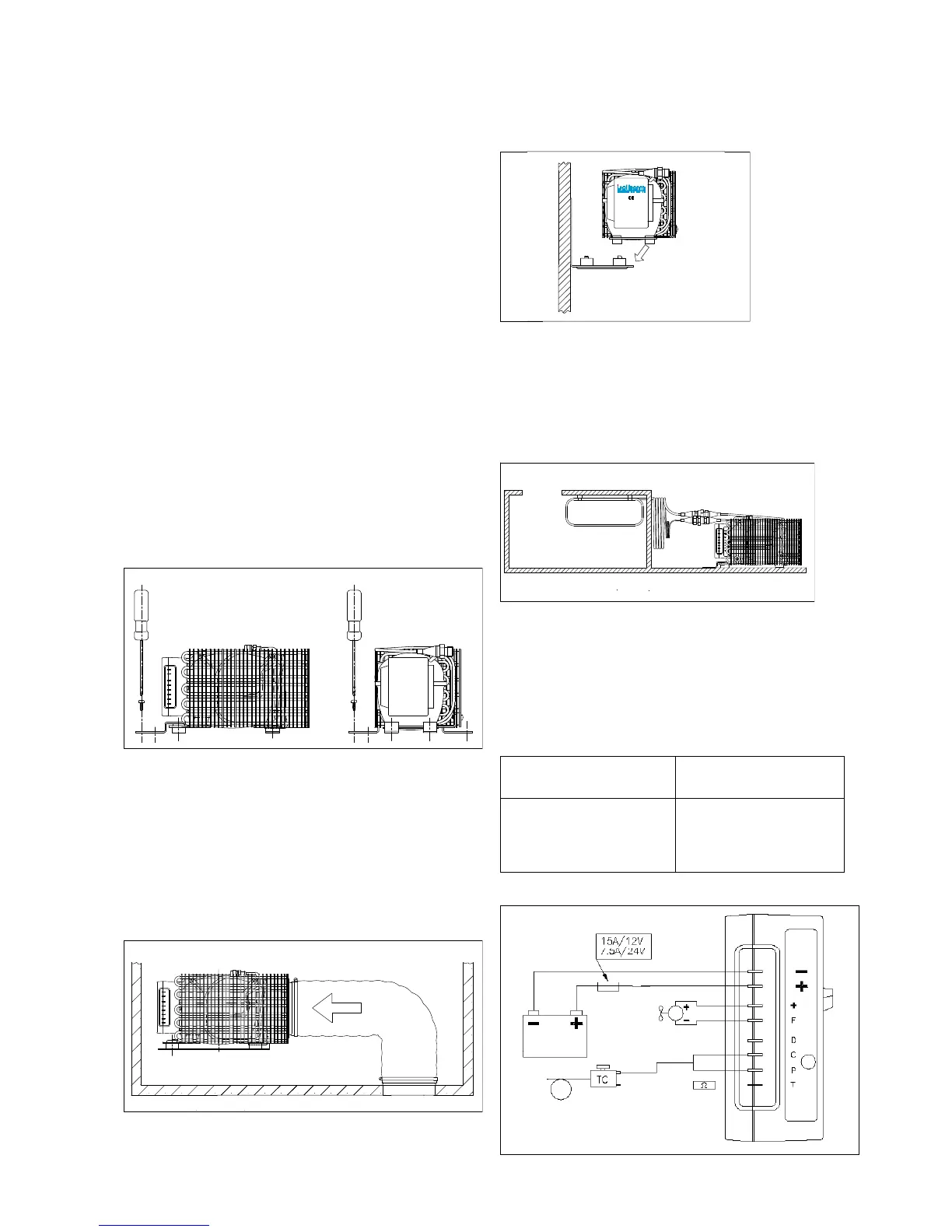
Installazione
Compressore
Il compressore/condensatore che dev’essere installato in
posizione orizzontale, può funzionare costantemente fi no ad
un’angolazione di 30° (Fig. 1)
Fig. 1
Anche se l’apparecchio può funzionare a temperatura fi no
45°C, dovrebbe essere posizionato nel luogo più fresco pos-
sibile. Se l’apparecchio viene installato in uno spazio ristretto,
la ventilazione può essere migliorata mediante aperture di
sfi ato dell’aria di 0.5 dm² nella parte superiore ed inferiore
dello spazio d’installazione. La ventilazione può essere ulte-
riormente migliorata montando un kit con tubo di ventilazione
(accessorio optional n° SBE00004AA). (Fig. 2)
Fig. 2
Il compressore, essendo silenzioso durante il funzionamento,
può essere collocato in un armadietto, in un guardaroba, in
uno scomparto di stivaggio o anche sotto una cuccetta.
Usando la staffa optional ad ”aggancio” (codice art. SGE
00002 AA), il compressore può essere installato facilmente
su una paratia. (Fig. 3)
Fig. 3
Posizionare il compressore suffi cientemente vicino alla
posizione in cui si prevede di installare l’evaporatore nel
frigorifero in modo da non superare la lunghezza del tubo di
collegamento (2 m). Assicurarsi che vi sia spazio suffi ciente
attorno ad esso per collegare e serrare gli attachi rapidi sui
tubi. (Fig. 4)
Fig. 4
Elettricità
L’unità elettronica deve sempre essere collegata direttamente
alla batteria o all’interruttore principale (più con più, meno
con meno). È molto importante che vengano usati cavi
di dimensioni corrette per l’alimentazione. Se dev’essere
installato un interruttore, deve potere sopportare un carico di
partenza di 15A. (Fig. 5)
Dimensioni cavi, mm² Lunghezza max* (metri)
2.5
4
6
0 - 2.5
2.5 - 6
6 - 10
* Distanza fra batteria ed unità elettrica.
Fig. 5
Dual volt 12-24 V DC
INDEL MARINE S.r.l.
S. AGATA FELTRIA(PU) ITALIA
4
Marrone
Azzurro

Related product manuals