EasyManua.ls Logo

Isotherm COMPACT CLASSIC - Page 8

Isotherm COMPACT CLASSIC
22 pages
Print Icon
To Next Page IconTo Next Page
To Next Page IconTo Next Page
To Previous Page IconTo Previous Page
To Previous Page IconTo Previous Page
Loading...
Bei der Konzeption des Kühlsystemes wurde auf die
Möglichkeit einfacher und leichter Selbsmontage beson-
deren Wert gelegt. Das Kühlsystem wird werkseitig mit
Kältemittel befüllt und vollkommen betriebsfertig gelie-
fert. Zur vereinfachung der Installation werden der Kom-
pressor und der Verdampfer als separate Teile geliefert.
Erst nach deren Montage werden sie durch das fl exible
Kühlrohr, das mit selbstdichtenden Schnellkupplungen
versehen ist, verbunden.
Die Voraussetzungen für eine gute Montage sind:
● Gute Isolierung des Kühlraumes, am besten aus dem
Material Polyurethan; 30 mm Stärke für Boxen bis 50
Liter, 50 mm bis 80 Liter und 100 mm oder mehr für
Größere Boxen.
● Der Verbrauchbatterien sollten eine Kapazität von min-
destens 75Ah haben.
● Das Batterieladegerät, die Kabel und Anschlüße im
elektrischen System sollten im gutem Zustand gehalten
werden.
Installation
Der Kompressor sollte waagerecht montiert werden, um
einen kontinuerlichen Betrieb bei bis 30° Neigungswinkel
gewährleisten zu können. (Fig. 1)
Fig. 1
Es ist vom Vorteil, wenn der Kompressor in einem gut belüf-
teten Stauraum eingebaut wird. Das Aggregat arbeitet pro-
blemlos bei Umgebungstemperaturen bis zu 45°C. Bei engen
Stauräumen sollte man die Frischluftventilation verbessern,
indem am tiefsten und höchsten Punkt Ventilationslöcher ge-
bohrt werden. Die Löcher sollten eine Mindestgröße von 0,5
dm² haben. (oben bzw. unten) Der Kompressor kan in einem
Schrank, einer Garderobe, einem Stauraum oder unter einer
Shlafkoje eingebaut werden. Die Ventilation kann mit einem
Ventilationsschlauchsatz verbessert werden. (Zubehör Best.
Nr: SBE00004AA). (Fig. 2)
Fig 2
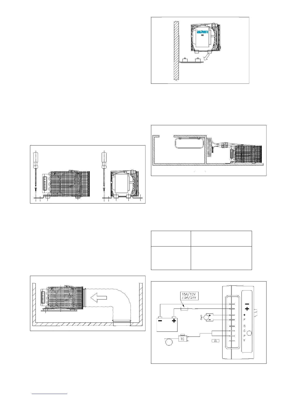
Mit der Konsole (Zubehör) Best. Nr: SGE00002AA) kann der
Kompressor auch an der Schottwand montiert werden.
(Fig. 3)
Fig 3
Das Verbindungsrohr zwischen Kompressor und Verdampfer
hat eine länge von 2 Meter. Bei der Plazierung des
Kompressors ist darauf zu achten, daß genügend Plazt
zum Anziehen der Schnellkupplungen mit Gabelschlüssel
vorhanden ist. (Fig. 4)
Fig 4
Elektrische Verdrahtung
Das Elektronikteil wird immer direkt an die Batterie bzw.
an den Strom-Hauptschalter angeschlossen. Wichtig ist es
auch, daß eine ausreichender Kabeldurchmesser gewählt
wird, um eine sichere Startfunktion zu erreichen. Ein separat
installierter Sicherungs-Automat oder Schalter muß für 15A
Leistung dimensioniert sein.
Kabelarea
mm²
Max. Länge* (meter)
2.5
4
6
0 – 2,5
2,5 – 6
6 – 10
* Abstand zwischen Batterie und Steuereinheit.
Fig. 5
Dual volt 12-24 V DC
INDEL MARINE S.r.l.
S. AGATA FELTRIA(PU) ITALIA
7
Rot
Schwarz
Braun
Blau

Related product manuals