EasyManua.ls Logo

Jackson ECOLAB ES-2000HH - Dimensions Es-2000-Cs

Jackson ECOLAB ES-2000HH
91 pages
Print Icon
To Next Page IconTo Next Page
To Next Page IconTo Next Page
To Previous Page IconTo Previous Page
To Previous Page IconTo Previous Page
Loading...
ES-2000 & ES-4000 Series Installation/Operation Manual 7610-011-35-10
Issued: 10-29-2007 Revised: N/A
SECTION 1: SPECIFICATION INFORMATION
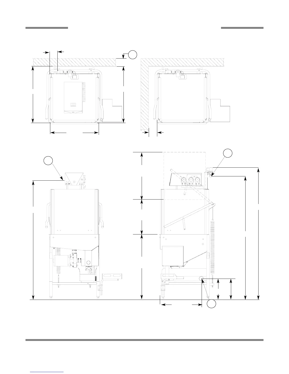
DIMENSIONS ES-2000-CS
5
LEGEND
A - WATER INLET (1/2”NPT)
B - ELECTRICAL CONNECTION POINT
C - DRAIN (2” NPT)
D - STANDARD CLEARANCE BETWEEN MACHINE AND
WALL (WITH DISHTABLE) IS 4”.
NOTE: All vertical dimensions are +/- 1/2” due to
adjustable feet.
5” Min.
4 11/16”
25 1/4”
25 1/4”
33 1/4”
Table
10 3/8”
11 3/4” with
Accumulator
Lift Kit
Ecolab No.:
96582202
64 11/16”
67 3/4”
22 1/2”
18”
Opening
62”
24 1/2”
Door
26 1/4”
A
B
C
D

Table of Contents

Related product manuals