EasyManua.ls Logo

Jackson ECOLAB ES-2000HH - Dimensions Es-4000 Cdr

Jackson ECOLAB ES-2000HH
91 pages
Print Icon
To Next Page IconTo Next Page
To Next Page IconTo Next Page
To Previous Page IconTo Previous Page
To Previous Page IconTo Previous Page
Loading...
ES-2000 & ES-4000 Series Installation/Operation Manual 7610-011-35-10
Issued: 10-29-2007 Revised: N/A
SECTION 1: SPECIFICATION INFORMATION
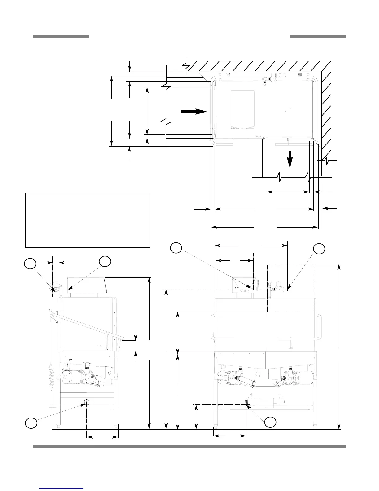
DIMENSIONS ES-4000CDR
9
19”
OPENING
12 3/8”
2 1/2”
5”
2 1/2”
20 3/4”
OPENING
4 1/2”
MINIMUM
1 1/2”
20 3/4”
OPENING
2 1/2”
4”
MINIMUM
3 1/2”
A.- DRAIN-GRAVITY 2” NPT
B.- WATER INLET 3/4” NPT
C.- ELECTRICAL CONNECTION
ALL DIMENSION FROM FLOOR ARE
ADJUSTABLE +/- 1/2” DUE TO BULLET FEET.
32 3/4”
25 3/4”
43 1/2”
46 1/2”
30 1/2”
16”
C
C
B
B
A
A
77”
60 3/4”
66 1/4”
34”
12”
14”

Table of Contents

Related product manuals