EasyManua.ls Logo

Jacuzzi J-SN180W - Installation of Temperature Controller; Controller Location and Cable Requirements; Mounting and Wiring the Controller

Jacuzzi J-SN180W
86 pages
To Next Page IconTo Next Page
To Next Page IconTo Next Page
To Previous Page IconTo Previous Page
To Previous Page IconTo Previous Page
Loading...
JacuzziSignatureWaterHeatersJS180/JS199 21
InstallaonofTemperatureController
ControllerLocaon
MounngtheController
CableLengthsandSizes
Thecontrollershouldbeoutofreachofsmall
children.
Avoidlocaonswherethecontrollermaybecome
hot(neartheovenorradiantheater).
Avoidlocaonsindirectsunlight.Thedigital
displaymaybediculttoreadindirectsunlight.
Avoidlocaonswherethetemperaturecontroller
couldbesplashedwithliquids.
Donotinstallinlocaonswhereitcanbe
adjustedbythepublic.
Indoormodelshavetheircontrollerbuiltintothe
frontpanel.Addionalcontrollerscanbeinstalled.
Thecableforthetemperaturecontrollershouldbea
nonpolarizedtwocorecablewithaminimumgauge
of22AWG.
Themaximumcablelengthfromeach
controllertothewaterheaterdependsonthetotal
numberofwiredcontrollersconnectedtothewater
heater.Controllersneedtobewiredinparallel.
IffourJC100controllersareinstalled,simultaneously
pressthePriorityModeandPowerbuonsonthe
fourth
controllerunlabeepsounds.
Numberof
Controllers
MaximumCableLengthforeach
ControllertoWaterHeater
1 328(100m)
2 164(50m)
3or4* 65(20m)
Turnthepowero.Donotaempttoconnectthe
temperaturecontrollerswiththepoweron.Although
thecontrollerisalowvoltagedevice,there is 120volt
potenalnexttothetemperaturecontroller
conneconsinsidetheunit.
Donotconnectthetemperaturecontrollertothe
120VAC
terminalsprovidedfortheoponalsolenoid
drainvalves.
WARNING
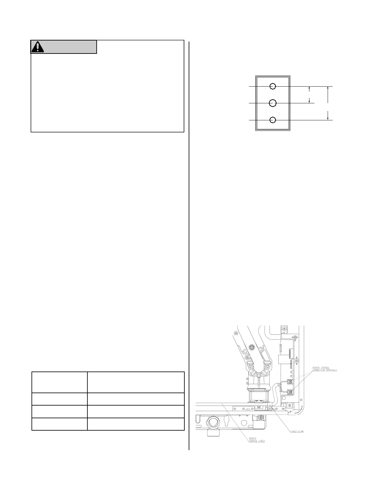
1. Makethreeholesinthewallasshown.
2. Runthecablebetweenthecontrollerandthe
waterheaterorthecontrollerandanother
controller.
3. Removethefaceplatefromthetemperature
controllerusingascrewdriver.
4. Connectthecabletothetemperaturecontroller.
5. Mountthecontrollerto
thewallusingtheholes
drilledinstep1.
6. Disconnectthepowerfromthewaterheater.
7. RemovetheplasccoverfromthePCBand
electricalconnecons.
8. Threadthecablethroughtheaccessholeatthe
baseoftheunitandconnectthewirestothe
controllerterminalsontherighthan dsideboom
ofthePCB.
9. Securethecontrollercableusingtheclamp
provided.
10. ReplaceplasccoveroverPCBandthenreplace
thecoverofthewaterheater.
Outline of Remote
securing screw
1-21/32"
3-5/16
"
securing screw
wiring hole
*Only3addionalcontrollerscanbewiredtothe
indoorwaterheater.

Related product manuals