EasyManua.ls Logo

Jetmaster UNIVERSAL 700D - Summary of Minimum Jetmaster Installation Specs

Default Icon
20 pages
Print Icon
To Next Page IconTo Next Page
To Next Page IconTo Next Page
To Previous Page IconTo Previous Page
To Previous Page IconTo Previous Page
Loading...
2
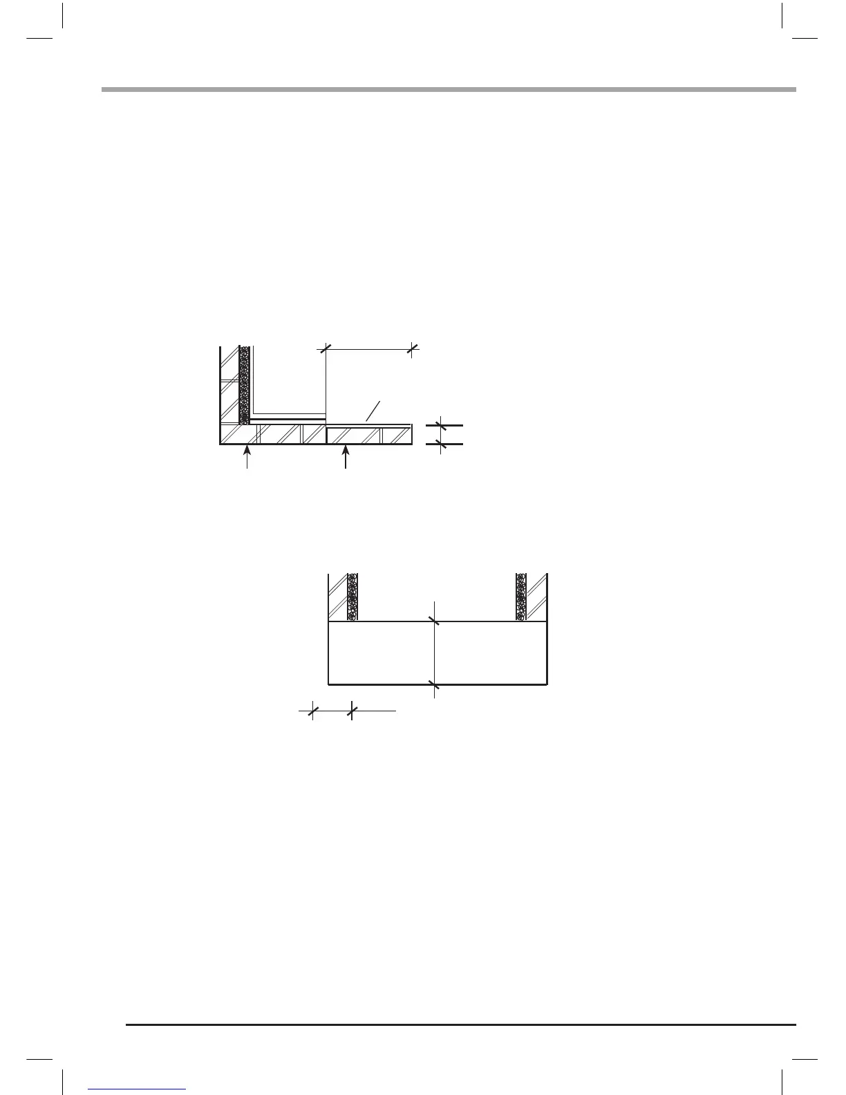
1. HEARTH
Must be constructed from a non combustible material such as concrete, brick, or autoclaved
aerated lightweight concrete block.
Models 400-700D must be minimum 26mm thick.
Models 850 - 1500 must be minimum 100mm thick. This includes selected finish
such as ceramic tiles, marble or granite.
Must project forward of aperture by a minimum of 300mm.
Must project either side of aperture by a minimum of 200mm.
JETMASTER
300mm MIN.
200mm MIN.
JETMASTER
SELECTED FINISH
BRICK ON EDGE BRICK ON FLAT
300mm MIN
100mm MIN (Models 850-1500)
26mm MIN (Models 400-700D)
Summary of Minimum Jetmaster Installation Specs

Related product manuals