EasyManua.ls Logo

Jøtul F 602 CB - Page 15

Jøtul F 602 CB
20 pages
Print Icon
To Next Page IconTo Next Page
To Next Page IconTo Next Page
To Previous Page IconTo Previous Page
To Previous Page IconTo Previous Page
Loading...
15
F 602 CB 139677_R04 April 2017
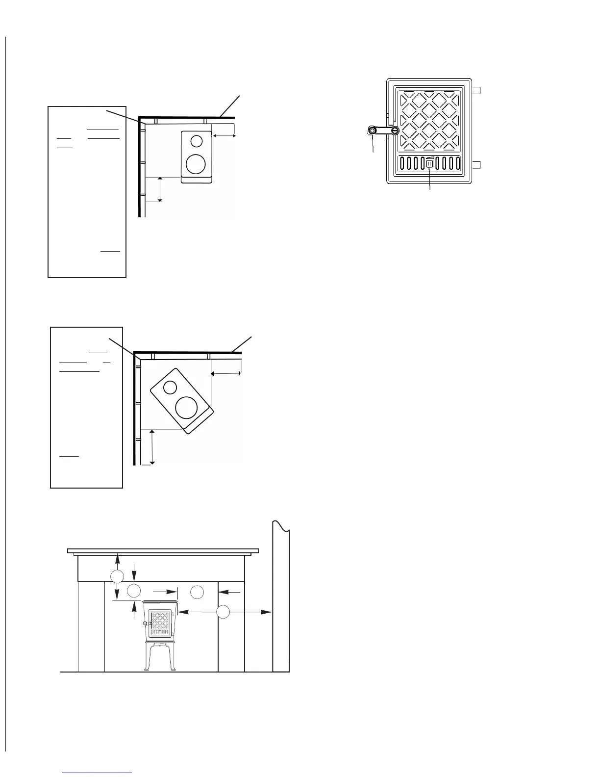
Wall Shield
Must be 1” off
the wall and 1
off the floor.
With single wall
pipe, the shield
must be 49”.
With the double
wall pipe, the
shield must be
37” high.
Both shields
MUST extend
and join in the
corner.
Combustible wall
The wall shield
must extend a
minimum of 7”
(178mm) past
the front corner
of the stove.
The wall shield must
extend a minimum of 7”
(178mm) past the front
corner of the stove.
Corner installation with wall shield
Fig. 18
Parallel installation in a corner with
wall shield
Fig. 17
The wall shield must extend a mini-
mum of 7” (178mm) past the ash lip
of the stove
Wall Shield
Must be 1” off the
wall and 1” off the
floor.
With single wall
pipe, the shield
must be 49” high
measured off the
floor.
With double wall
pipe, the shield
must be 37” high
measured off the
floor.
Both shields MUST
extend and join in
the corner.
Combustible wall
The wall
shield must
extend a
minimum of
4” (102 mm)
past the side
of the stove
Fig. 20
Controls
Air Valve:
Left = Closed / Right = Open
Door Latch

 
 
 

Fig. 19
Fireplace Mantel and Trim Clearance

Related product manuals