EasyManua.ls Logo

JUKI LBH-1700 - Knife bar;position and stroke adjustment

JUKI LBH-1700
126 pages
Print Icon
To Next Page IconTo Next Page
To Next Page IconTo Next Page
To Previous Page IconTo Previous Page
To Previous Page IconTo Previous Page
Loading...
−12
Standard Adjustment
0 to 1 mm
0.4 to 0.6 mm
4 to 5 mm
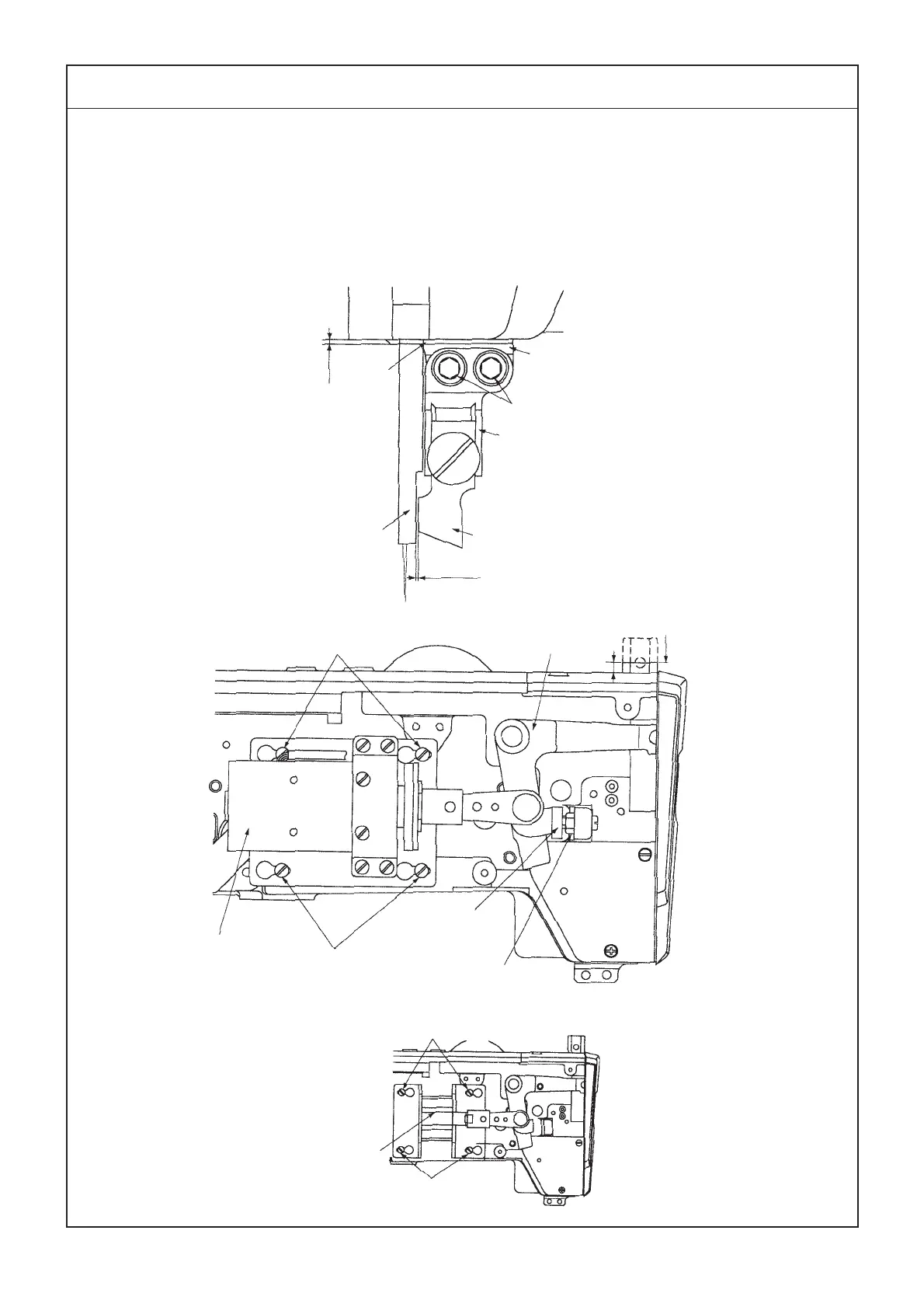
(11) Knife bar/position of the knife installing base/knife bar stroke
a) Clearance provided between the cloth cutting knife and the needle bar is 0.4 to 0.6 mm.
b) When the knife bar is at the stop position, the distance from the jaw section of the machine arm to the top
end of the concave of the knife bar is 0 to 1 mm.
c) For the solenoid type, the distance from the top surface of the machine arm to the top end of the knife bar
is 4 to 5 mm when lightly pressing down the knife bar by hand.
Knife bar
Needle bar
Concave of knife bar
Knife installing base setscrews
Knife installing base
Cloth cutting knife
Solenoid setscrews Knife driving lever
To lightly press by hand
Knife driving solenoid
Solenoid setscrews
Knife driving
lever stopper
Stopper nut
Cylinder setscrews
Knife driving cylinder
Cylinder setscrews

Table of Contents

Other manuals for JUKI LBH-1700

Related product manuals