EasyManua.ls Logo

Jula 416-085 - Beskrivning; Innedel; Utedel

Jula 416-085
Print Icon
To Next Page IconTo Next Page
To Next Page IconTo Next Page
To Previous Page IconTo Previous Page
To Previous Page IconTo Previous Page
Loading...
SVENSKA
9
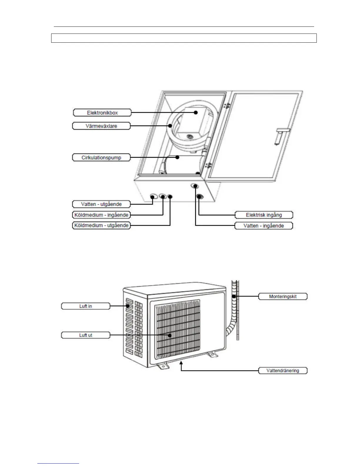
BESKRIVNING
Innedel
Utedel

Table of Contents

Related product manuals