EasyManua.ls Logo

JVC AV-32D201 - ADJUSTMENT LOCATIONS

JVC AV-32D201
71 pages
Print Icon
To Next Page IconTo Next Page
To Next Page IconTo Next Page
To Previous Page IconTo Previous Page
To Previous Page IconTo Previous Page
Loading...
No. 51686
A
V-27D201
A
V-32D201
13
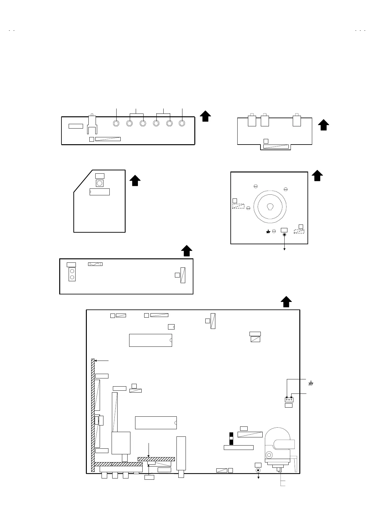
ADJUSTMENT LOCATIONS
IF PWB
CW
IC101
TOP
CRT EARTH
(BRAIDED ASS'Y)
TP-R
CRT SOCKET PWB
(SOLDER SIDE)
TOP
T
TP-B
TP-G
E2
TP-E( )
U
IC701
CN001
DEG.
D
TUNER
AV SELECTOR PWB
TP-E
( )
B1
(TP-91)
B1
1
3
HV
E1
CRT EARTH
(BRAIDED ASS'Y)
U



V CENTER SW
IC702
S
T
CW
UPPER : FOCUS
LOWER : SCREEN
IC201
CN004
IF PWB
H
MAIN PWB
FRONT
CN002
MPX
CN003
H
PW
F901
LINE FILTER PWB
FRONT
FRONT CONTROL PWB
FRONT
POWER MENU
VOL CH
D
F
FRONT
FRONT AV IN PWB

Related product manuals