EasyManua.ls Logo

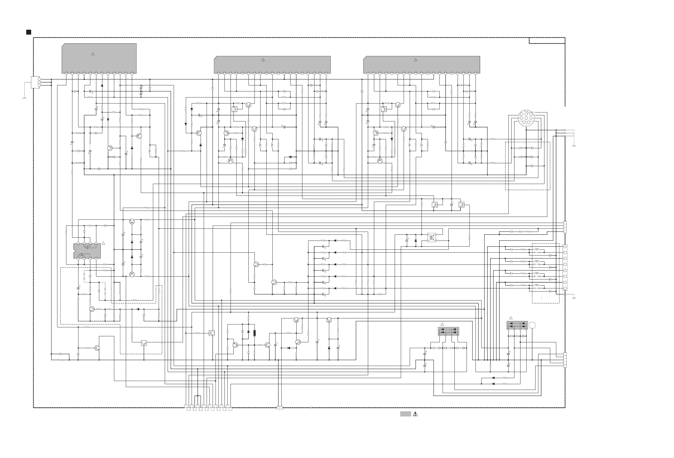
JVC SP-PWDD3 - Speaker Amplifier Section

JVC SP-PWDD3
89 pages
Print Icon
To Next Page IconTo Next Page
To Next Page IconTo Next Page
To Previous Page IconTo Previous Page
To Previous Page IconTo Previous Page
Loading...
2-12
Parts are safety assurance parts.
When replacing those parts make
sure to use the specified one.
Speaker amplifier section
C3232
0.01
L3601
1
R3612
15K
C3432
0.01
R3605
56K
Q3601
KTA1504/YG/-X
R3611 1K
C3603
10/63
C3605
3P
R3613
47K
J3001
QND0118-001
1
3
6
7
8
5
2
4
C3606
3P
R3602
NI
R3604
1.8K
9
R3603
56K
C3604
33/50
R3601
15K
9
C3132
0.01
CN301
QGA3901C1-04
1
2
3
4
C3332
0.01
C3002
10/50
CN303
QGA2501C1-02
2
1
IC303
STK404-120
1
PT
2
IN
3
NF
4
SUB
5
-PRE
6
+12V
7
BIAS+
8
BIAS-
9
-VCC
10
+VCC
11
OUT-
12
OUT+
C3031
10/50
C3033
100/25
C3034
100/50
C3203
10/63
R3206
3.3K
R3102
2.2K
C3206
2200P
R3106
3.3K
C3205
8P
R3204
1.8K
R3203
56K
C3105
8P
R3202
2.2K
C3204
2.2/50
R3105
56K
R3103
56K
R3205
56K
IC301
STK453-030A
19
NF/2
18
NF/1
17
IN/2
16
IN/1
15
NC
14
GND
13
S.BY
12
SUB
11
NC
10
+PRE
9
NC
8
CH2-
7
-PRE
6
CH2+
5
NC
4
CH1+
3
+VCC
2
CH1-
1
-VCC
R3013
4.7K
R3201
3.9K
C3012
10/50
C3104
2.2/50
C3103
10/63
L3201
0.45
C3102
470P
C3011
10/50
C3106
2200P
L3101
0.45
R3104
1.8K
C3202
470P
C3015
0.01
QNB0157-003
J3002
12345678
D3911
GBU803
2341
3300/50
C3911
CN302
QGA3901C1-05
1
2
3
4
5
4.7K
R3903
0.047/50
C3913
0.047/50
C3918
4.7K
R3902
0.047/50
C3914
8200/25
C3901
0.047/50
C3916
0.047/50
C3917
3300/50
C3912
8200/25
C3902
68K
R3663
Q3661
KTC3875/YG/-X
5.1K
R3662
100K
R3661
0.1
C3671
22K
R3672
R3671
22K
0.47
C3661
IC304
NJM4580M-X
8
VCC
765
1234
VEE
10/63
C3654
3.9K
R3651
47K
R3659
0.047
C3653
6.8K
R3656
390KR3654
56K
R3657
NIR3655
0.047
C3652
6.8K
R3658
R3665
15K
R3664
1K
C3662
0.47
D3661
1SS133-T2
0.012
C3672
6.8K
R3652
C3932
47/25
C3942
47/25
10
11
D3031
1SS133-T2
C3035
47/50
R3032
4.7K
R3033
4.7K
C3032
10/50
D3601
1SS133-T2
D3032
1SS133-T2
Q3031
KTA1504/YG/-X
R3034
10K
1/4W
R3035
1K
Q3052
KTC3875/YG/-X
R3054
100K
R3055
3.3K
1/4W
R3056
10K
1/4W
D3001
1SS133-T2
D3902
1SS133-T2
D3903
1SS133-T2
0.047/50
C3915
0.022
C3905
0.022
C3904C3903
0.022
D3901
GBU803
2341
0.45L3231
0.45L3131
0.45L3431
0.45L3331
B3101
R3221
470
R3222 180K
D3221
1SS133-T2
C3221
4.7/50
R3621
470C3621
4.7/50
D3621
1SS133-T2
R3622 180K
R3121
470C3121
4.7/50
D3121
1SS133-T2
R3122 180K
R3421
470C3421
4.7/50
D3421
1SS133-T2
R3422 180K
R3321
470C3321
4.7/50
D3321
1SS133-T2
R3322 180K
R3051
NI
R3052
56K
R3053
6.2K
Q3051
KTC3875/YG/-X
C3037
0.01
C3036
0.01
Q3941
KTA1267/YG/-T
Q3931
KTC3199/GL/-T
D3931
MTZJ13B-T2
C3931
47/25
R3931
6.8K
R3941
6.8K
D3941
MTZJ13B-T2
C3941
47/25
Q3802
KTC3875/YG/-X
R3801
10K
Q3803
KTC3875/YG/-X
R3809
750
C3801
10/50
Q3801
KTA1271/OY/-T
R3803
100K
R3805
470
R3802
470
R3807
680
R3822
1K
Q3821
KTC3875/YG/-X
C3821
1000P
Q3921
KTC2026/Y/
R3921
1.5K
1/4W
D3921
MTZJ13B-T2
C3921
47/25
C3922
47/25
R3323
100K
R3623
100K
R3223
100K
R3123
100K
R3423
100K
R3808
3.3K
R3812
1K
1/4W
Q3811
KRC109S-X
Q3662
KRA109S-X
R3666
4.7K
R3811
10K
EP301
QNZ0136-001Z
123
R3823
10
C3822
0.01
B3104
B3103
B3102
C3401
220P
C3201
220P
C3301
220P
C3101
220P
CN304
QGB2510J1-16
1AC ON
2+VH
3-VH
4+VL
5-VL
6SAFETY
7+A12V
8-A12V
9SP RELAY
10PROTECT
11GND
12GND
13GND
14+D12V
15DC DETECT
16P.ON CONT
RY301
QSK0142-001
24
13
Q3001
KRC109S-X
C3001
10/50
R3012
4.7K
Q3011
KTC3199/GL/-T
C3013
100/25
R3001
10K
C3038
0.01
C3601
220P
R3607
0.22
5W
MP
R3606
0.22
5W
MP
UNF
R3031
100
1/2W
R3608
4.7
1/2W
UNF
470
R3901
OMF
2W
C3403
10/63
R3023
4.7K
C3021
10/50
R3404
1.8K
R3303
56K
R3406
3.3K
R3403
56K
C3022
10/50
C3306
2200P
R3405
56K
R3302
2.2K
C3305
8P
L3301
0.45
IC302
STK453-030A
19
NF/2
18
NF/1
17
IN/2
16
IN/1
15
NC
14
GND
13
S.BY
12
SUB
11
NC
10
+PRE
9
NC
8
CH2-
7
-PRE
6
CH2+
5
NC
4
CH1+
3
+VCC
2
CH1-
1
-VCC
C3024
0.01
C3304
2.2/50
R3402
2.2K
R3022
4.7K
C3406
2200P
C3303
10/63
R3304
1.8K
L3401
0.45
C3404
2.2/50
C3402
470P
Q3021
KTC3199/GL/-T
R3306
3.3K
C3023
100/25
C3405
8P
C3025
0.01
C3302
470P
R3305
56K
R3401
3.9K
R3932
100
1/4W
R3942
100
1/4W
R3821
47K
R3002
4.7K
Q3804
KTC3875/YG/-X
TH301
QAD0146-103
10K
D3801
MTZJ3.3B-T2
C3803
0.01
R3806
47K
C3802
0.01
R3301
3.9K
R3101
3.9K
WC301
QZW0112-001
R3231
4.7
1/4W
R3331
4.7 1/4W
R3131
4.7 1/4W
R3631
4.7 1/4W
R3431
4.7 1/4W
R3036
10K
1/4W
C3039
10/50
0.022
C3602
Q3022
KTA1267/YG/-T
Q3041
KTA1504/YG/-X
D3043
MTZJ10B-T2
R3042
47K
R3045
6.8K
1/4W
R3041
47K
D3042
MTZJ22B-T2
R3044
470
R3043
4.7K
C3041
47/25
D3041
1SS133-T2
C3042
0.01
C3043
0.01
D3044
MTZJ20B-T2
C3014
0.01
R3804
1.5K
1/4W
Q3013
KTA1504/YG/-X
R3011
100
1/4W
R3021
100
1/4W
Q3014
KTA1504/YG/-X
R3017
22K
R3018 22K
D3011
MTZJ5.1B-T2
22/50
C3016
R3016
47K
R3014
1K
R3015
220K
R3019
100K
Q3002
KRC109S-X
UNF
R3208
4.7
1/2W
UNF
R3108
4.7
1/2W
UNF
R3308
4.7
1/2W
UNF
R3408
4.7
1/2W
R3026
47K
D3021
MTZJ5.1B-T2
R3027
22K
Q3023
KTA1504/YG/-X
Q3024
KTA1504/YG/-X
R3028 22K
22/50
C3026
R3025
220K
R3029
100K
R3024
1K
C3231
0.1/50
C3131
0.1/50
C3431
0.1/50
C3632
0.1/50
C3631
0.1/50
C3331
0.1/50
HS301
E70306-001
B3105
B3106
Q3015
KRC104S-X
R3063 100K
R3062
1K
Q3025
KRC104S-X
R3073 100K
R3072
1K
R3933
47
1/4W
R3061
47
1/4W
R3071
47
1/4W
Q3012
KTA1267/YG/-T
D3802
MTZJ6.8B-T2
TO SUBWOFFER
SLOUT
SL
FLOUT
FROUT
SROUT
L
P.ON
TO LED PWB
SWLEVEL
SR
SW
R
COM
TO FAN MOTOR
LVA10684-A1
DD3 ONLY
B3105,3106
EXCEPT DD3
DD3
EXCEPT DD3 0.018
DD3
EXCEPT DD3
0.068
B/E/EN/EV/EE
B/E/EN/EV/EE
B3101 B3104
EXCEPT B/E/EN/EV/EE
TO TRANS
(LVA10684-A3)
TO CA-DD1/3/8
SYSTEM CONNECTOR
TO CONTROL (CN105)
(LVA10684-A2)
!
!
!
!
!
!

Table of Contents

Related product manuals