EasyManua.ls Logo

Kärcher PUZZI 64/35E - Wiring

Kärcher PUZZI 64/35E
42 pages
Print Icon
To Next Page IconTo Next Page
To Next Page IconTo Next Page
To Previous Page IconTo Previous Page
To Previous Page IconTo Previous Page
Loading...
38 86343360 PUZZI 64/35E
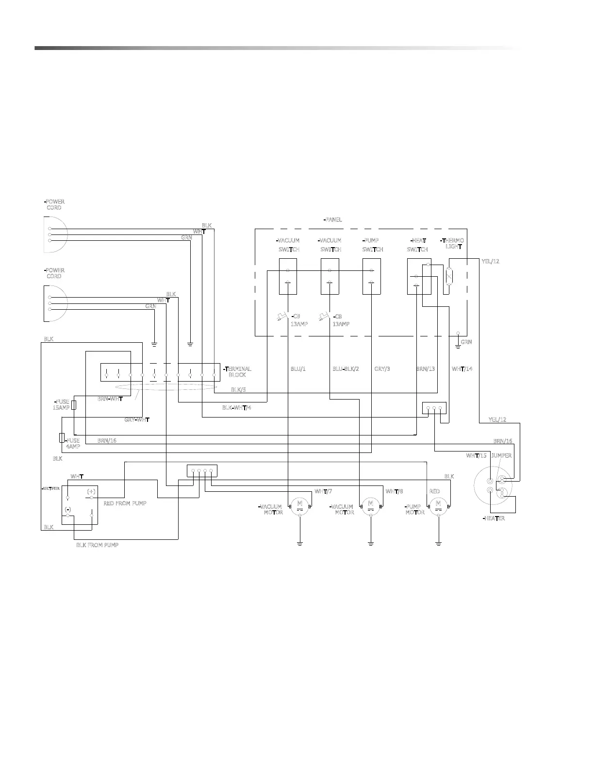
Wiring
1

Related product manuals