EasyManua.ls Logo

Keltech KRAD M Series - KRAD 60 M ID Diagram Drawings

Default Icon
62 pages
Print Icon
To Next Page IconTo Next Page
To Next Page IconTo Next Page
To Previous Page IconTo Previous Page
To Previous Page IconTo Previous Page
Loading...
Page 30
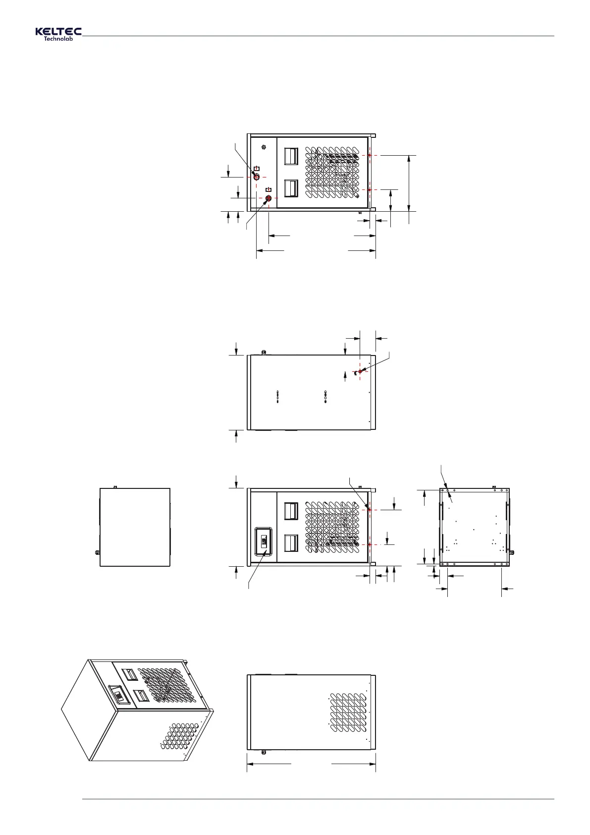
6.3 ID DIAGRAM DRAWINGS
KRAD 60M
8
3
1
.
5
0
[
3
2
.
7
4
i
n
]
473.00 `5.00 18.62 `.2 in
[ ]
454.00 `5.00 17.87 `.2 in
[ ]
3
8
.
6
5
`
.
5
0
1
.
5
2
`
.
0
i
n
[
]
131.24 `.50 5.17 `.02
in
[ ]
341.33 `2.00 13.44 `.08
in
[ ]
1
0
0
.
0
0
`
2
.
0
0
3
.
9
4
`
.
0
8
i
n
[
]
100.50 [3.96 in]
± 2.00 [.08 in]
3
8
.
6
5
`
2
.
0
0
1
.
5
2
`
.
1
i
n
[
]
130.91 [5.15 in]
±2.00 [.08 in]
340.91 [13.42 in]
± 2.00 [.08 in]
6
9
3
.
1
1
`
2
.
0
0
2
7
.
2
9
`
.
1
i
n
[
]
7
7
0
.
6
0
`
2
.
0
0
3
0
.
3
4
`
.
1
i
n
[
]
80.20 `2.00 3.16 `.08 in
[ ]
207.20 `2.00 8.16 `.08 in
[ ]
AIR OUTLET
G 3/4"
AIR INLET
G 3/4"
DRAIN
Ø6mm PNEUMATIC FITTING
447.00 [17.60 in]
12.50 [.49 in]
5
1
.
9
8
[
2
.
0
5
i
n
]
3
5
0
.
1
8
[
1
3
.
7
9
i
n
]
n11.51 [n.45 in] x 4pcs
M6 x 4pcs
FRONT VIEW
BACK VIEW
LEFT VIEW RIGHT VIEW
BOTTOM VIEW
TOP VIEW
ISOMETRIC VIEW
CONTROLLER