EasyManua.ls Logo

Keystone KS - Page 9

Keystone KS
60 pages
Print Icon
To Next Page IconTo Next Page
To Next Page IconTo Next Page
To Previous Page IconTo Previous Page
To Previous Page IconTo Previous Page
Loading...
Keystone Boilers and Water Heaters
Page 9
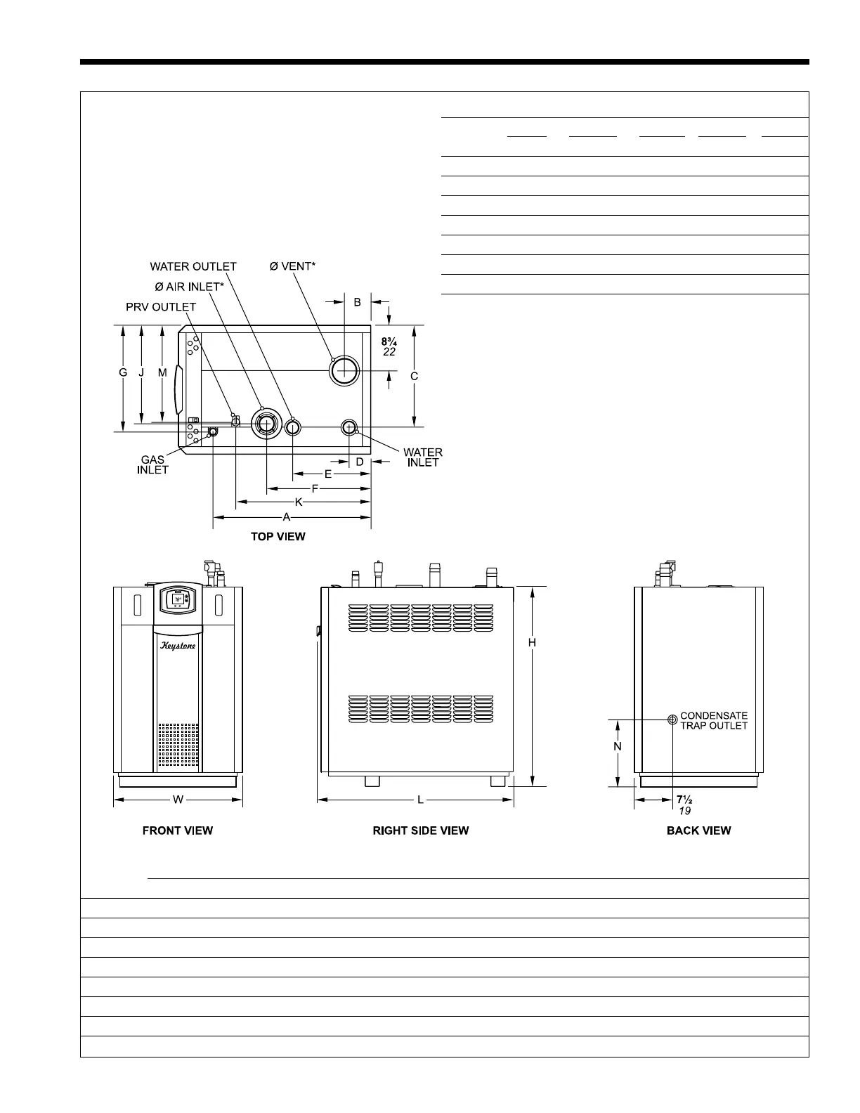
Figure 8. Dimensional Drawing, Sizes 80-500.
Dimensions are nominal and are shown in inches, cm.
*
Keystone is shipped with adapters for the air and vent that accept
standard pipe of the proper size and type.
AB C D E F G J K MN
SIZE IN CM IN CM IN CM IN CM IN CM IN CM IN CM IN CM IN CM IN CM IN CM
199 KW 20½ 52 14 19 48 8 17¾ 45 19 14¼ 36 19½ 49 11¾ 30 15¼ 39 13 33
285 KW 20¼ 52 19 19¾ 50 16 11¼ 29 13½ 34 14 36 15 38 17 43 18¾ 48 13 33
399 KW 25 64 13 19¾ 50 11 14¾ 37 18½ 47 19¼ 49 16½ 42 21¾ 55 18¾ 48 13 33
500 KS 30¼ 77 13 19½ 50 11 15¼ 38 20 51 20½ 52 19 48 26 66 18¾ 48 13 33
500 KW 30¼ 77 13 19¾ 50 11 15¼ 38 20 51 20½ 52 19 48 26 66 18¾ 48 13 33
600 (both) 29¾ 76 5 13 19½ 50 11 15 38 20 51 3 8 19 48 26 66 18¾ 48 21
750 (both) 35½ 90 6 15 19½ 50 13 19 48 40½ 103 8 19 48 30¾ 78 18¾ 48 21
850
(both) 39¾ 101 6 15 19½ 50 13 19 48 44¾ 114 9 19 48 35 89 18¾ 48 21
W L H AIR INLET VENT
SIZE IN CM IN CM IN CM IN CM IN CM
199 25 64 26¾ 68 38¼ 97 3 7.6 3 7.6
285 25 64 26¾ 68 38¼ 97 11 11
399 25 64 31½ 80 38¼ 97 11 11
500 25 64 37¾ 96 38¼ 97 11 11
600 25 64 37¾ 96 38¼ 97 11 11
750 25 64 51 130 38¼ 97 11 17
850 25 64 55¼ 130 38¼ 97 11 17

Table of Contents