EasyManua.ls Logo

Keystone KS - KS Suggested Piping Schematics; Recognized Chemicals

Keystone KS
60 pages
Print Icon
To Next Page IconTo Next Page
To Next Page IconTo Next Page
To Previous Page IconTo Previous Page
To Previous Page IconTo Previous Page
Loading...
Page 20
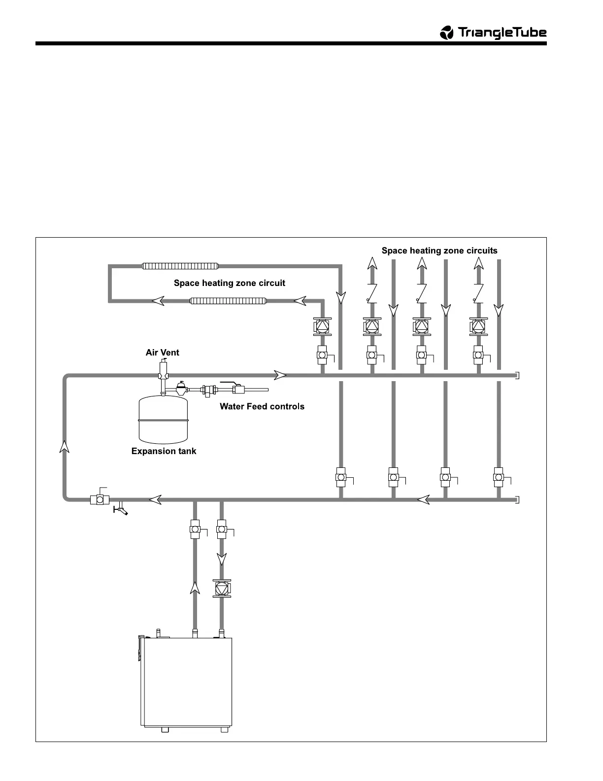
Figure 14. Hydronic Piping — Single Boiler (zoning with circulators).
KeystoneKeystone
KeystoneKeystone
Keystone
IMPORTANT NOTES: Different glycol products may
provide varying degrees of protection. Glycol products
must be maintained properly in a heating system, or they
may become ineffective. Consult the glycol specifications,
or the glycol manufacturer, for information about specific
products, maintenance of solutions, and set up according
to your particular conditions.
6A.4 KS Suggested Piping Schematics
Figures 14 through 20 show suggested piping
configurations for KS boilers. These diagrams are only
meant as a guide. All components or piping required by
local code must be installed.
6A.5 Recognized Chemicals
The following manufacturers offer glycols,
inhibitors, and anti foamants that are suitable for use in
the Keystone. Please refer to the manufacturers
instructions for proper selection and application.
1. Sentinel Performance Solutions Group
2. Hercules Chemical Company
3. Dow Chemical Company

Table of Contents