EasyManua.ls Logo

KitchenAid 2316565B - Requisitos Eléctricos

KitchenAid 2316565B
76 pages
Print Icon
To Next Page IconTo Next Page
To Next Page IconTo Next Page
To Previous Page IconTo Previous Page
To Previous Page IconTo Previous Page
Loading...
31
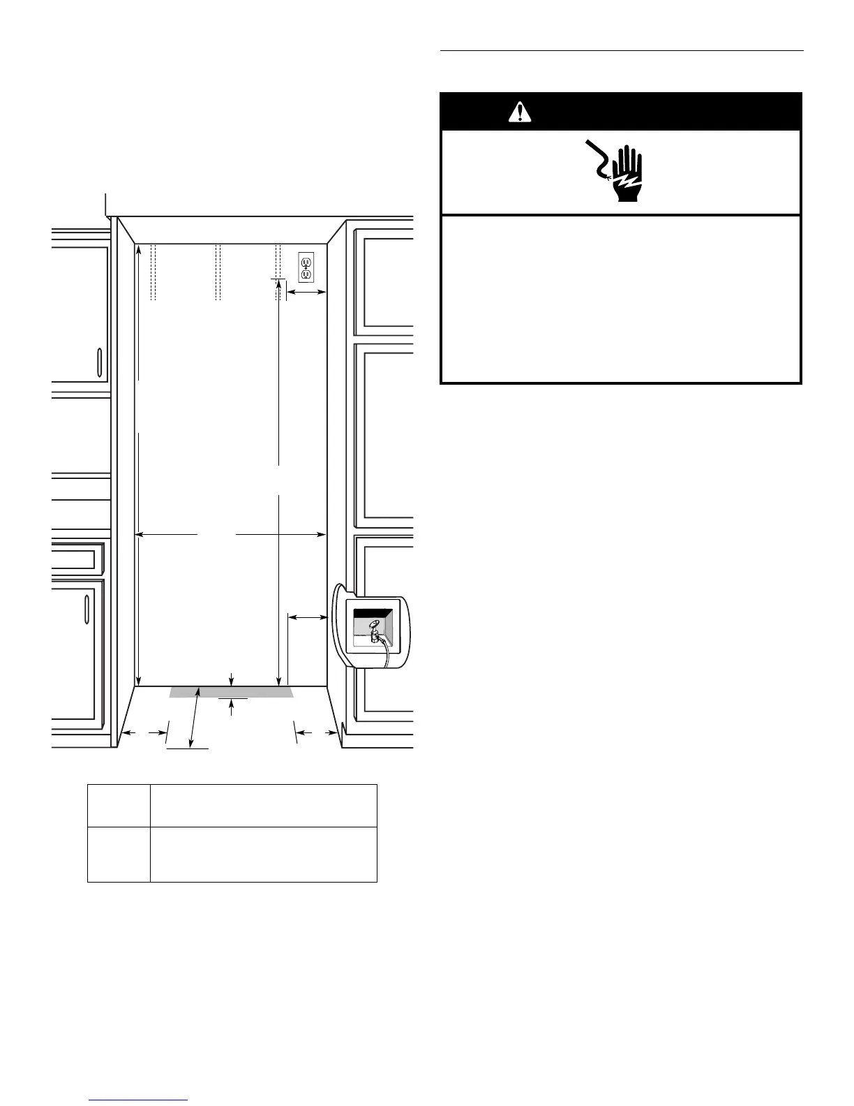
Un contacto de tres terminales con conexión a tierra debe ser
ubicado a no más de 4" (10,2 cm) a la derecha de los armarios
laterales o del panel del extremo. Vea “Requisitos eléctricos”
para obtener información adicional.
El cierre del agua deberá estar ubicado en la base del armario,
a cualquier lado del refrigerador o en algún otro lugar de fácil
acceso. Si la válvula de cierre del agua no está en los
armarios, la tubería para la línea del agua puede llegar a través
del piso o de la pared trasera. Vea “Requisitos del suministro
de agua” para obtener información adicional.
NOTA: El piso que está debajo del refrigerador deberá estar al
mismo nivel que la habitación. El frente de los armarios debe
estar nivelado.
Requisitos eléctricos
Antes de mover el refrigerador a su posición definitiva, es
importante asegurarse que Ud. tiene la conexión eléctrica
adecuada.
Método de conexión a tierra recomendado
Se requiere una fuente de energía eléctrica de 115 Voltios, 60 Hz.,
CA solamente y con fusibles de 15 ó 20 amp, debidamente
conectada a tierra. Se recomienda que se use un circuito
separado sólo para su refrigerador. Use un tomacorriente que no
se puede apagar con un interruptor. No use un cable eléctrico de
extensión.
IMPORTANTE: Si este producto está conectado a un
tomacorriente protegido por un interruptor del circuito de falla
eléctrica de puesta a tierra (GFCI - Ground Fault Circuit
Interrupter), puede ocurrir un disparo brusco del suministro de
corriente, lo que resultará en una pérdida de enfriamiento. Esto
puede afectar la calidad y el sabor de los alimentos. Si ha
ocurrido un disparo brusco, y el alimento aparenta estar en malas
condiciones, deshágase del mismo.
NOTA: Antes de realizar cualquier tipo de instalación, limpieza o
quitar un foco, quite la rejilla superior y ponga el interruptor de
alimentación en la posición OFF (Apagado) o desconecte el
suministro de energía eléctrica en la caja de disyuntores.
Cuando haya terminado, ENCIENDA el interruptor de suministro
de energía o reconecte el suministro de energía en la caja de
disyuntores. Luego vuelva a ajustar el control en la posición
deseada.
Modelo Ancho A
(como se muestra anteriormente)
36
42
48
35¹⁄₂" (90,2 cm) a 35³⁄₄" (90,8 cm)
41¹⁄₂" (105,4 cm) a 41³⁄₄" (106,1 cm)
47¹⁄₂" (120,7 cm) a 47³⁄₄" (121,3 cm)
80" - 90"
(203-229 cm)
4"
(10,2 cm)
6"
(15,2 cm)
83¹⁄₂" (212,1 cm) mín.
84
³⁄₄" (215 cm) máx.
a la base de un
plafón sólido
24"
(60,96 cm) mín.
1"
(2,54 cm)
77"
(196 cm)
6"
(15,2 cm)
6"
(15,2 cm)
A
Ancho
(vea el cuadro siguiente)
ADVERTENCIA
Peligro de Choque Eléctrico
Conecte a un contacto de pared de conexión a tierra de
3 terminales.
No quite la terminal de conexión a tierra.
No use un adaptador.
No use un cable eléctrico de extensión.
No seguir estas instrucciones puede ocasionar
la muerte, incendio o choque eléctrico.

Table of Contents

Related product manuals