EasyManua.ls Logo

KitchenAid 2316565B - Paneles a la Medida para la Serie Classic

KitchenAid 2316565B
76 pages
Print Icon
To Next Page IconTo Next Page
To Next Page IconTo Next Page
To Previous Page IconTo Previous Page
To Previous Page IconTo Previous Page
Loading...
40
Paneles a la medida para la serie Classic
Si va a instalar paneles de madera a la medida, deberá hacerlos
usted mismo o consultar con un carpintero o fabricante de
armarios calificado. Para obtener información acerca de las
especificaciones de los paneles, vea los gráficos dimensionales.
IMPORTANTE: Los paneles que pesan más de lo recomendado
pueden dañar a su refrigerador.
NOTA: Las medidas que se muestran deberán tener una
tolerancia de (±) ¹⁄₁₆" (1,5 mm). Los paneles de más de ¹⁄"
(6,35 mm) de grosor deberán contornearse. Si los paneles tienen
menos de ¹⁄" (6,35 mm) de grosor, instale un panel de relleno
entre las puertas y los paneles decorativos.
Panel de la rejilla superior
El panel de la rejilla superior no deberá pesar más de 10 lbs
(4,5 kg).
NOTA: Las líneas punteadas en la ilustración representan la
ubicación y las salientes del panel de madera en relieve.
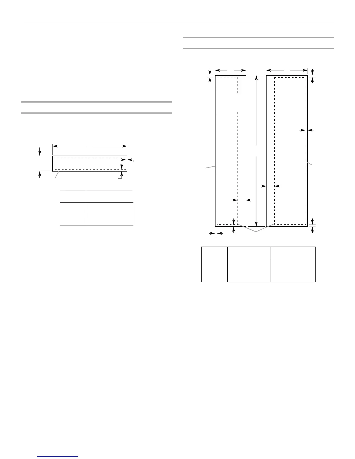
Paneles de puerta para modelos sin despachador
El panel del congelador no deberá pesar más de 40 lbs (18,1 kg).
El panel del refrigerador no deberá pesar más de 50 lbs (23 kg).
NOTAS:
Si se usa la manija normal, la saliente de los dos paneles del
lado de la manija deberá ser de 3¹⁄" (8,25 cm) para tener
suficiente espacio para sujetar la manija.
Si se usa una manija extendida, la saliente de los dos paneles
del lado de la manija deberá ser de ⁷⁄₁₆" (1,1 cm). Cerciórese
de que la ubicación del refrigerador permita que las puertas
con manijas extendidas se abran a 90 grados. Vea “Medidas
de oscilación de las puertas”.
Las líneas punteadas en la ilustración representan la
ubicación y las salientes del panel de madera en relieve.
Modelo A
36
42
48
34¹⁄₄" (87,0 cm)
40¹⁄₄" (102,2 cm)
46¹⁄₄" (117,5 cm)
A
7"
(17,78 cm)
Salientes superior
e inferior
¹¹⁄₁₆" (1,75 cm)
Salientes laterales
⁷⁄₁₆" (1,11 cm)
Madera laminada
con un espesor de
¹⁄₄"
Modelo A B
36
42
48
14¹⁄₄" (36,2 cm)
16³⁄₄" (42,6 cm)
19¹⁄₄" (48,9 cm)
19¹⁄" (48,9 cm)
22³⁄" (57,8 cm)
26¹⁄" (66,7 cm)
Puerta del
congelador (sin
despachador)
B
A
Puerta del
refrigerador
70⁷⁄₁₆"
(178,9 cm)
¹⁄₂"
(1,27 cm)
¹⁄₂"
(1,27 cm)
¹⁄₂"
(1,27 cm)
¹⁄₂"
(1,27 cm)
⁷⁄₁₆"
(1,1 cm)
⁷⁄₁₆"
(1,1 cm)
Madera
laminada
con un
espesor
de
¹⁄₄"
3¹⁄₄"
(8,3 cm)
Ubicación y salientes del
panel de madera en relieve
3¹⁄₄"
(8,3 cm)
Madera
laminada
con un
espesor
de
¹⁄₄"

Table of Contents

Related product manuals