EasyManua.ls Logo

KitchenAid 2316565B - Overlay Series Custom Panels and Handle Kits

KitchenAid 2316565B
76 pages
Print Icon
To Next Page IconTo Next Page
To Next Page IconTo Next Page
To Previous Page IconTo Previous Page
To Previous Page IconTo Previous Page
Loading...
13
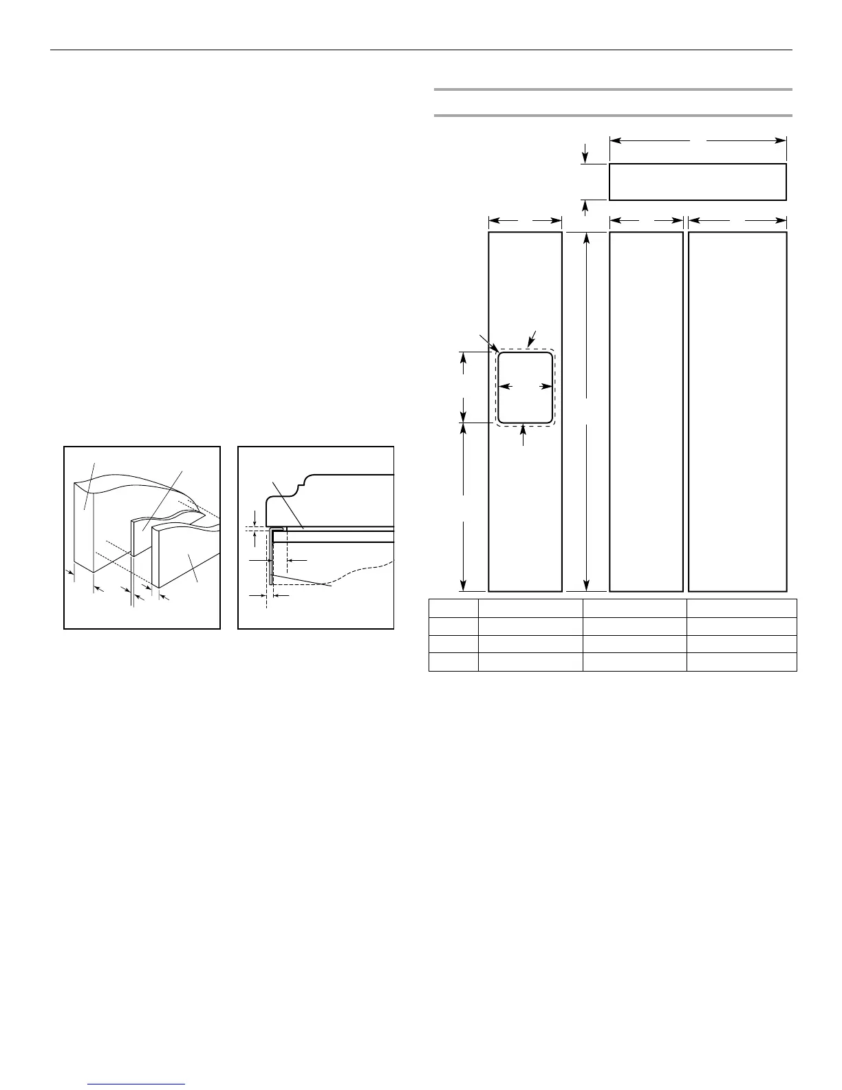
Overlay Series Custom Panels and Handle Kits
Custom overlay panels allow you to blend the exterior of your
refrigerator into the overall kitchen décor, and to use custom
handles for additional design flexibility.
The custom panels must have backer panels attached in order to
mount them to the refrigerator. It is most common to work with
three panels, as shown in the following graphic: a decorative
overlay panel, a ¹/" (3.18 mm) spacer panel or spacer strips and a
¹/" (6.35 mm) backer panel.
In some cases, your cabinet manufacturer may choose to work
with one panel routed for the different dimensions. Follow these
panel dimension and placement instructions to be sure that the
custom overlay panels will fit properly.
IMPORTANT:
The weight of the refrigerator door overlay panel cannot
exceed 50 lbs (23 kg).
The weight of the freezer door overlay panel cannot exceed
40 lbs (18.1 kg).
The weight of the top grille overlay panel cannot exceed
10 lbs (4.5 kg).
To minimize panel weight, you may use 2" (5.08 cm) spacer strips
around the perimeter in place of full-sheet solid spacer panels.
The spacer strips must be set in at least 1" (2.54 cm) from the top,
bottom and sides edges of the backer panel. If you use spacer
strips, it is also recommended that you use two 2" (5.08 cm) strips
horizontally centered for added support.
Decorative Overlay Panel
*Represents placement of dispenser frame. The dispenser frame
overlaps the dispenser cutout by ⁵⁄₁" (0.78 cm) on each side and
¹⁄₂" (1.27 cm) on the top and bottom.
Overlay Panel
Spacer Panel
Backer Panel
5
/8" to
3
/4"
(15.88 to
19.05 mm)
1
/8"
(3.18 mm)
1
/4"
(6.35 mm)
1" minimum
(2.54 cm)
Door/Grille Trim
Spacer Panel
Offset Dimension
1
/8"
(3.18 mm)
Overlay Panel
Backer Panel
Model A B C
36 14³/" (37.47 cm) 19³/" (50.17 cm) 34³/" (88.27 cm)
42 17¹/" (43.82 cm) 23¹/" (59.06 cm) 40³/" (103.51 cm)
48 19³/" (50.17 cm) 26³/" (67.95 cm) 46³/" (118.75 cm)
14¹⁄₄"
(36.2 cm)
33
⁷⁄₈"
(86.0 cm)
B
AA
Freezer
Door Panel
(Non-Dispenser)
Refrigerator
Door Panel
C
7
¹⁄₄"
(18.4 cm)
10
⁷⁄₈"
(27.6 cm)
Preferred
Radius
¹⁄₂"
(1.27 cm)
72
¹⁄₄"
(183.5 cm)
Freezer
Door Panel
(Dispenser)
Dispenser
cut-out is
centered
left-to-right
*
Grille Panel

Table of Contents

Related product manuals