EasyManua.ls Logo

KitchenAid KBLO36FTX08 - Page 15

KitchenAid KBLO36FTX08
80 pages
Print Icon
To Next Page IconTo Next Page
To Next Page IconTo Next Page
To Previous Page IconTo Previous Page
To Previous Page IconTo Previous Page
Loading...
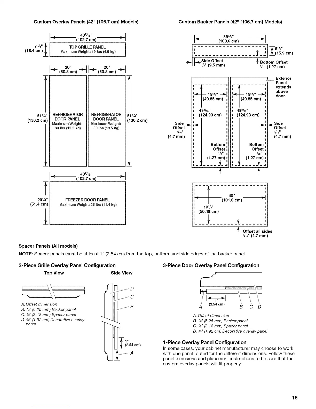
Custom Overlay Panels (42" [106.7 cm] Models) Custom Backer Panels (42" [106.7 cm] Models)
407A6''
(102.7 cm)
71/4"T i TOP GRILLE PANEL i
(18.4 cm)__l Maximum Weight: 10 robs(4.5 kg)
T
511/4"
(130.2 cm)
(50.2-0"m)8c-_ <(-- 20" __.
(50.8 cm)
REFRIGERATOR
DOOR PANEL
MaximumWeight:
30 Ibs (13.5 kg)
REFRIGERATOR
DOOR PANEL
Maximum Weight:
30 robs(13.5 kg)
l
511/4"
(130.2 cm)
T
201/4"
(51.4 cm)
4077_6''
(102.7 em)
FREEZER DOOR PANEL
Maximum Weight: 25 Ibs (11.4 kg)
39%"
(100.6 cm)
i -
, ,IT61/ ,,
' _f I1 ____(15.9cm)
_>_ __Side Offset /_Bottom Offset
3/8 (9.5 mm) 1/2"(1.27 cm)
Side
Offset
3/16 II
(4.7 ram)
493116''
(124.93 cm)
,K-
Bottom
Offset
1/211
(1.27 cm)
493116''
(124.93 cm)
Bottom
Offset
1/211
(1.27 cm)
_i .... _L
! Exterior
Panel
extends
above
door.
.<_Side
Offset
3/16 II
(4.7 mm)
|||== = =l
=.
i 19!/| ii
II 8
I (50.48 cm)
I
| .........
40"
(101.6 cm)
_- Offset all sides
3/16"(4.7 mm)
Spacer Panels (All models)
NOTE: Spacer panels must be at least 1" (2.54 cm) from the top, bottom, and side edges of the backer panel.
3-Piece Grille Overlay Panel Configuration
TopView Side View
I
S
A. Offset dimension
B. ¼" (6.25 mm) Backer panel
C. _" (3.18 mm) Spacer panel
D. _" (1.92 cm) Decorative overlay
panel
_,f, S'_ D
.............. S
ii i!
..... A
3-Piece Door Overlay Panel Configuration
f
C D
A. Offset dimension
B. ¼" (6.25 mm) Backer panel
C. _" (3.18 mm) Spacer panel
D. _" (1.92 cm) Decorative overlay panel
1-Piece Overlay Panel Configuration
In some cases, your cabinet manufacturer may choose to work
with one panel routed for the different dimensions. Follow these
panel dimesions and placement instructions to be sure that the
custom overlay panels will fit properly.
15

Related product manuals