EasyManua.ls Logo

KitchenAid KBLO36FTX08 - Page 70

KitchenAid KBLO36FTX08
80 pages
Print Icon
To Next Page IconTo Next Page
To Next Page IconTo Next Page
To Previous Page IconTo Previous Page
To Previous Page IconTo Previous Page
Loading...
R_frig_rateur
241/8''
(61,3 cm)
2311/16''
(60,3 cm)
231/2, '
(59,7 cm)
Garnitures lat_rales
1/4"
(6,35 mm)
3/16"
(4,7 mm)
7/32'1
(5,5 mm)
t
F
1%2"(10 mm)
11//64"
(4,5 mm)
(15,7 mm)
Dimensions d'installation pour un panneau ins_r_
1. Mesurer la distance du point A (tel qu'illustre) a la paroi
arriere. Ajouter 7/32"(5,6 mm) & cette mesure pour que le
panneau lateral entre dans la garniture.
2. Si le panneau a plus de 1¼,,(6,35 mm) d'epaisseur, usiner la
rive avant pour que I'insertion du panneau lateral soit
possible.
Dimensions d'installation pour un panneau
en affleurement
1. Mesurer la distance du point A (tel qu'illustre) a la paroi
arriere.
Dimensions d'installation pour un panneau ins_r_
en retrait
1. Mesurer la distance du point A (tel qu'illustre) & la paroi
arriere.
2. Usiner la rive avant de la tringle d'appui ou installer une
planchette de 1¼,,(6,35 mm) pour la retention du panneau
dans la garniture laterale de la caisse.
Des panneaux lateraux personnalises peuvent _tre necessaires
Iorsqu'il n'y a pas suffisamment d'espace pour avoir des
placards des deux c6tes du refrigerateur ou Iorsque le
refrigerateur est place & I'extremite d'une enfilade de placards.
Vous avez le choix d'installer un panneau insere ou insere en
retrait.
Dimensions du r_frig_rateur et des garnitures lat_rales
La largeur et la hauteur du panneau lateral sont determinees en
fonction du type d'installation prevu.
REMARQUES :
Les dimensions indiquees sont les dimensions reelles du
produit et peuvent ne pas refleter les dimensions
necessaires d'installation des panneaux.
Le panneau lateral doit avoir une epaisseur d'au moins
1/2"(1,27 cm) pour eviter le gauchissement.
Si la profondeur de I'ouverture est de 25" (63,5 cm) ou
plus, il faudra peut-_tre installer une tringle d'appui sur le
mur arriere.
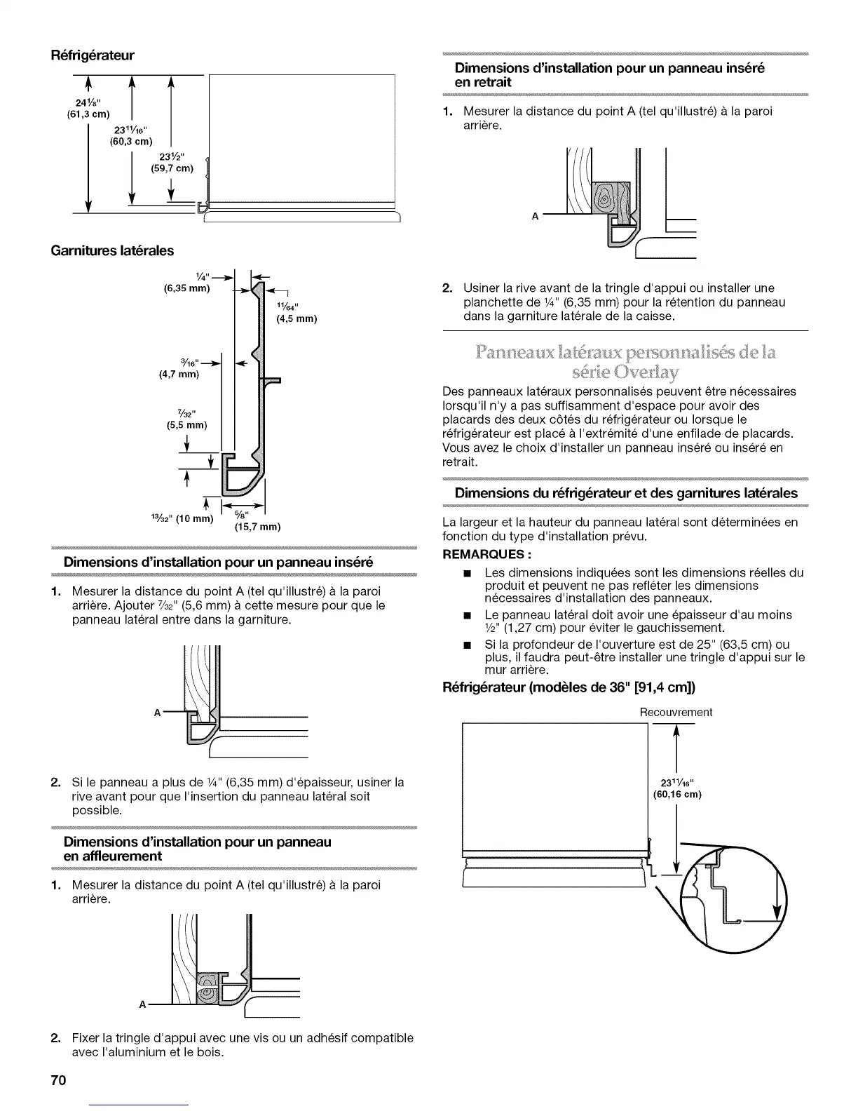
R_frig_rateur (modUles de 36" [91,4 cm])
Recouvrement
2311/16''
(60,16 cm)
)
A
2. Fixer la tringle d'appui avec une vis ou un adhesif compatible
avec I'aluminium et le bois.
70

Related product manuals