EasyManua.ls Logo

KitchenAid KDRU707VSS01 - Page 26

KitchenAid KDRU707VSS01
56 pages
Print Icon
To Next Page IconTo Next Page
To Next Page IconTo Next Page
To Previous Page IconTo Previous Page
To Previous Page IconTo Previous Page
Loading...
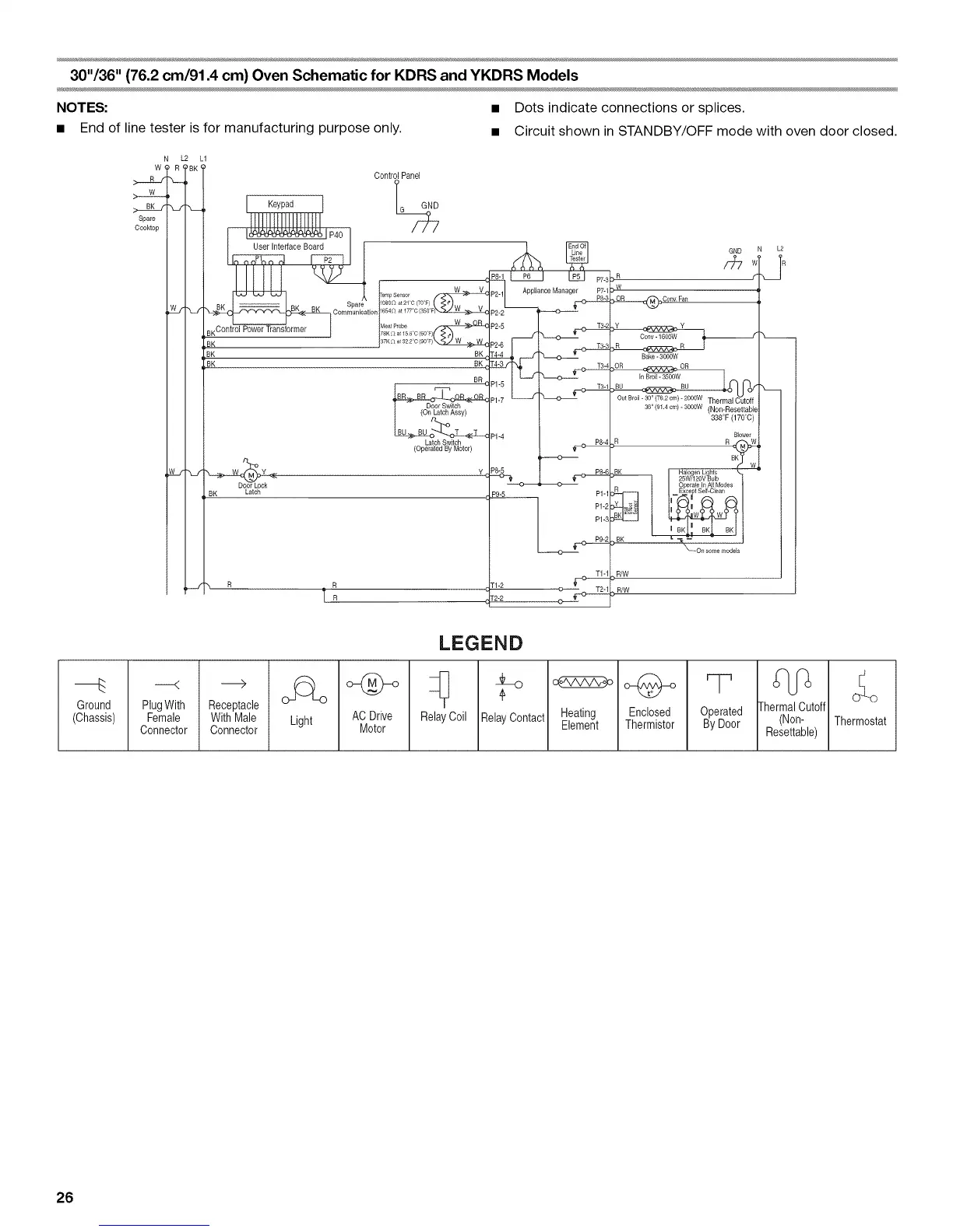
30"/36" (76.2 cm/91.4 cm) Oven Schematic for KDRS and YKDRS Models
NOTES: Dots indicate connections or splices.
End of line tester is for manufacturing purpose only. Circuit shown in STANDBY/OFF mode with oven door closed.
>_,,_&_f "__
>__2w,
Spare
Cooktop
w_j
N L2 L1
W _R )BK
S are tlon
BK
BK
BK
BK Latch
R R
Io
Control Panel
BK
BK
8_
BR BRDoor Switch
Latch Switch
(Operated By Motor)
P2-6
"[4-4 _ T34
P1-5
P1-4
,F o P8-4
P9-5 P]-1
Pl-_
Pl -_
T1-2
T2-2
GND
3 R f
_W
_@Conv. Fan
Cony-1600W
Bake -3000W
3OR OR
_off fin.Broil- 3500W.
36" (91.4¢m)-3000W Non-Resettable
338 F 170 C
Bbwer
BK W
Halo enU hts
O_erateInAllModes
Exce t Se_t-Qean
I--
I w w
BK
_on some models
R/W
R/W
L2
Ground
(Chassis)
---4
PlugWith
Female
Connector
LEGEND
Receptacle
WithMale
Connector
Light
AC Drive
Motor
RelayCoil
RelayContact
Heating
Element
Enclosed
Thermistor
Operated
By Door
rhermal Cutoff
(Non-
Resettable)
Thermostat
26

Related product manuals