EasyManua.ls Logo

KitchenAid KSSO36QMX - Spécifications Électriques

KitchenAid KSSO36QMX
76 pages
Print Icon
To Next Page IconTo Next Page
To Next Page IconTo Next Page
To Previous Page IconTo Previous Page
To Previous Page IconTo Previous Page
Loading...
65
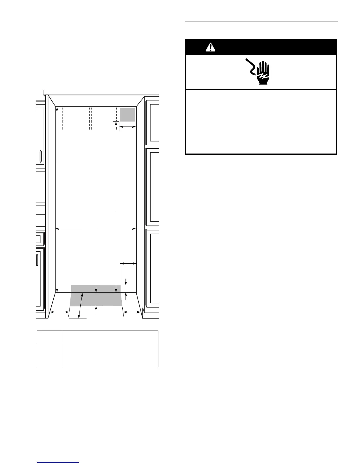
Une prise de courant à 3 alvéoles reliée à la terre devrait être
installée à 4" (10,2 cm) du côté droit des placards ou du
panneau d'extrémité. Voir “Spécifications électriques” pour
plus d'information.
Le robinet d'arrêt devrait se trouver dans le placard inférieur,
d'un côté ou l'autre du réfrigérateur ou à un autre endroit
facilement accessible. Si le robinet d'arrêt n'est pas dans les
placards, la plomberie pour la canalisation d'alimentation
peut être acheminée à travers le plancher ou le mur arrière.
Voir “Spécifications de l’alimentation en eau” pour plus
d'information.
Spécifications électriques
Avant de placer le réfrigérateur à son emplacement final, il est
important de vous assurer d'avoir la connexion électrique
appropriée.
Méthode recommandée de mise à la terre
Une source d'alimentation de 115 volts, 60 Hz, type 15 ou
20 amp CA seulement, protégée par fusible et adéquatement
mise à la terre est nécessaire. Il est recommandé d'utiliser un
circuit distinct pour alimenter uniquement votre réfrigérateur.
Utiliser une prise murale qui ne peut être mise hors circuit à l'aide
d'un commutateur. Ne pas utiliser de cordon de rallonge.
IMPORTANT : Si ce produit est connecté à une prise protégée
par un disjoncteur de fuite à la terre, un déclenchement
intempestif peut se produire et causer une perte de
refroidissement. La qualité et la saveur des aliments risquent
d'être affectées. Si un déclenchement intempestif se produit et si
les aliments semblent de piètre qualité, jeter le tout.
REMARQUE : Avant d'exécuter tout type d'installation,
nettoyage ou remplacement d'une ampoule d'éclairage, enlever
la grille supérieure et mettre l'interrupteur général d'alimentation
à OFF (arrêt) ou déconnecter la source de courant électrique au
boîtier de disjoncteurs.
Lorsque vous avez terminé, mettre l'interrupteur général
d'alimentation à ON (marche) ou reconnecter la source de
courant électrique au boîtier de disjoncteurs. Puis mettre de
remettre la commande au réglage désiré.
Modèle Largeur A (tel qu'illustré ci-dessus)
36
42
48
35 ½" (90,2 cm))
41 ½" (105,4 cm)
47 ½" (120,7 cm)
80" - 90"
(203-229 cm)
4"
(10,2 cm)
6"
(15,2 cm)
3"
(7,6 cm)
23¹⁄"
(60 cm) min.
11"
(28 cm)
77"
(196 cm)
6"
(15,2 cm)
6"
(15,2 cm)
A
Largeur
(voir le tableau suivant)
83
¹⁄₄" (211,5 cm) min.
84
³⁄₄" (215 cm) max.
jusqu'à la base du soffite
AVERTISSEMENT
Risque de choc électrique
Brancher sur une prise à 3 alvéoles reliée à la terre.
Ne pas enlever la broche de liaison à la terre.
Ne pas utiliser un adaptateur.
Ne pas utiliser un câble de rallonge.
Le non-respect de ces instructions peut causer
un décès, un incendie ou un choc électrique.

Table of Contents

Related product manuals