EasyManua.ls Logo

Knight 80 - Diagrams

Knight 80
72 pages
Print Icon
To Next Page IconTo Next Page
To Next Page IconTo Next Page
To Previous Page IconTo Previous Page
To Previous Page IconTo Previous Page
Loading...
Installation & Operation Manual
70
13 Diagrams
BOX DEPICTS
OPTIONAL ITEMS
LADDER DIAGRAM
LBL7083 REV G
120 VAC
24 VAC
120VAC
TERMINAL STRIP
120V SUPPLY "L"
ON / OFF
SWITCH
X1-6
BOILER PUMP
RELAY
DHW PUMP
RELAY
SYSTEM PUMP
RELAY
BLOWER
RELAY
X1-4
X1-3
X1-2
X1-1
BOILER
PUMP "L"
DHW
PUMP "L"
SYSTEM
PUMP "L"
BOILER
PUMP
DHW
PUMP
SYSTEM
PUMP
BOILER
PUMP "N"
DHW
PUMP "N"
SYSTEM
PUMP "N"
12
3
BLOWER
JUNCTION BOX
X1-5
X6-8
X6-3
F5
X5-7
X6-7
NEUTRAL
CN4-1
CONNECTION
BOARD
CN4-7
CN5-1
TERMINAL STRIP
120V SUPPLY "N"
JUNCTION
BOX
X1-8
FLOW
SWITCH
CONNECTION
BOARD
CN5-3
LW CO
CN5-2
CN5-4
ROOM THERMOSTAT
ZONE CONTROL
DHW
TH ERM OSTAT
CONNECTION
BOARD
CONNECTION BOARD
CN4-6
CN4-13
CN4-5
CN4-3
X6-9
X6-6
X6-1
X6-5
INTEGRATED
CONTROL
MANUAL RESET
HIGH LIMIT
X5-14
CN4-9X6-4
CONNECTION
BOARD
LOW GAS
PRESSURE
SWITCH
HIGH GAS
PRESSURE
SWITCH
AUX. DEVICE
PILOT SUPPLY
24VAC
AUX. DEVICE
PROVING
CN4-2
X6-10
BLOCKED
DRAIN
SWITCH
AUTO RESET
HI-LIMIT
X5-11
X5-3
X5-10
X5-4
X2-1
GAS VALVE
GAS VALVE
RELAY
X5-5
X5-13
X5-6
X5-12
1
2
4
5
5A
F4
3.5A
F2
3.5A
F3
1.25A
TR1
X1-7
FLAME ROD
SPARK
ROD
INTEGRATED CONTROL
GROUND
JUNCTION BOX
INTEGRATED
CONTROL
120 VAC
LOW VOLTAGE
HIGH VOLTAGE
CAUTION HIGH VOLTAGE SPARK LEAD
BLOWER
TERMINAL
STRIP
TERMINAL
STRIP
CN3-8
CN3-7
CN3-9
CN3-6
CN3-4
CN3-3
CN3-1
CN3-10
DISPLAY
CONNECTION BOARD
INLET
SENSOR
OUTLET
SENSOR
FLUE
SENSOR
X4-8
X4-7
X4-9
X4-6
X4-4
X4-3
X4-1
X4-10
INTEGRATED
CONTROL
CN4-11
CN4-12
CN4-10
CN4-4
ALARM
CONTACTS
RUN-TIME
CONTACTS
X3-1
X3-3
X3-4
X3-2
X5-8
X5-1
X5-2
X5-9
X3
RIBBON CABLE
CN3-5
X4-5
X8
SYSTEM
SENSOR
(AUX) DHW
TANK
SENSOR
OUTDOOR
SENSOR
0-10V
+
-
RS485
A
B
SHIELD
SHIELD
EXTERNAL
CONTROL
CN1-1
CN3-2
X4-2
CN1-2
CN1-3
CN1-4
CN1-5
CN1-6
CN1-7
CN1-8
CN1-9
CN1-10
CN1-11
CN1-12
CN2-8
CN2-7
CN2-6
CN2-5
PC
INTERFACE
CN2-7
CN2-8
CN2-9
CN2-10
CN2-15
SILENCING SWITCH
ALARM BELL
S6
S4
S5
S2
S1
S3
CN2-9
CN2-2
CN2-10
CN2-12
CN2-1
CN2-3
CN2-11
CN2-16
CN2-15
CN2-14
CN2-13
CN2-4
X2-2
GND
GND
GND
X6-2
CN4-14
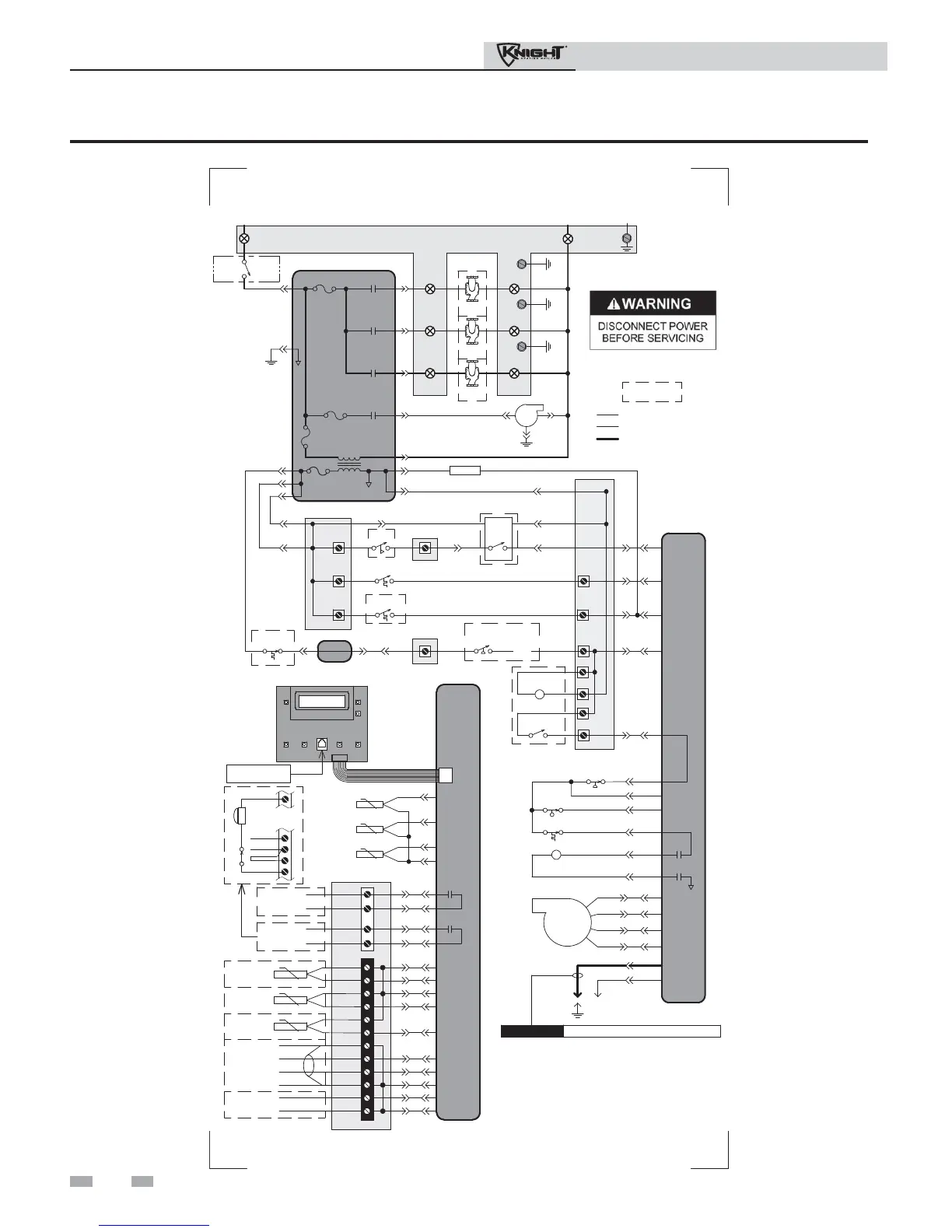
NOTES:
1. Where possible, switches are shown without utilities (gas, water or
electricity) connected to the unit. As such, actual switch states may
vary from those shown on diagrams depending upon whether utilities
are connected or a fault condition is present.
2. See wiring diagram for additional notes.
KB
MODELS
ONL Y
AIR PRESSURE
SWITCH
RESISTOR
Figure 13-1 Ladder Diagram

Table of Contents

Other manuals for Knight 80

Related product manuals