EasyManua.ls Logo

Knight 80 - Wiring Diagram

Knight 80
72 pages
Print Icon
To Next Page IconTo Next Page
To Next Page IconTo Next Page
To Previous Page IconTo Previous Page
To Previous Page IconTo Previous Page
Loading...
Installation & Operation Manual
71
DISPLAY
X1-8
X5-5
X5-13
X5-6
X5-12
INTEGRATED CONTROL
BLOWER
X1-1
X2-2
X2-1
X1-7
GAS
VALVE
FLAME
ROD
SPARK
ROD
W/R
G
R
R
T
W
BK
G
R
13
2
W
G
BOX DEPICTS
OPTIONAL ITEMS
WIRING DIAGRAM
LBL7082 REV E
WARNING
DISCONNECT POWER
BEFORE SERVICING
INLET
SENSOR
OUTLET
SENSOR
FLUE
SENSOR
MANUAL RESET
HI-LIMIT
BLOCKED
DRAIN
X5-8
X5-1
X5-2
X5-9
X5-7
X5-14
X5-11
X5-3
X5-4
X5-10
BK
R
W
Y
BL
PR
OR/BK
P
OR
GY
BL
PR
OR
P
OR
GY
1
245
3
SYSTEM
SENSOR
(AUX) DHW
TANK
SENSOR
OUTDOOR
SENSOR
0-10V
+
-
RS485
A
B
CONNECTION BOARD
CN3
X4
X1-3
X1-5
X1-2
X1-6
X1-4
120V
SUPPLY
BOILER
PUMP
DHW
PUMP
SYSTEM
PUMP
JUNCTION
BOX
TERMINAL STRIP
OR
W
PR
BK
BR
OR
W
PR
BK
BR
W
W
W
L
N
ON/OFF
SWITCH
L
GND
N
SHIELD
SHIELD
BK
Y
FLOW
SWITCH
GAS
PRESSURE
SWITCH
AUX.
DEVICE
PROVING
LOW
WATER
CUT-OFF
CN5-1
CN4-6
CN4-1
CN4-9
CN4-3
CN4-2
X6-9
X6-3
X6-4
X6-5
X6-10
BR
Y
P
BK
OR
CN4-11
CN4-12
CN4-10
CN4-4
ALARM
CONTACTS
RUN-TIME
CONTACTS
X3-1
X3-3
X3-4
X3-2
R
R
PR
PR
AUX.
DEVICE
PILOT
SUPPLY
CN4-8
X6-8
Y
DHW
THERMOSTAT
CN4-5
X6-1
W
ROOM
THERMOSTAT
ZONE
CONTROL
CN4-7
CN4-13
X6-2
X6-6
BL
GY
R
EXTERNAL
CONTROL
AUTO RESET
HI-LIMIT
CAUTION HIGH VOLTAGE SPARK LEAD
CN5-3
CN5-4
CN5-2
24 VAC
COM
L
N
L
N
L
N
GND
GND
GND
GND
TR1
X8
120 VAC
LOW VOLTAGE
HIGH VOLTAGE
X3
PC
INTERFACE
CN4-14
CN1-12
CN1-11
CN1-10
CN1-9
CN1-8
CN1-7
CN1-6
CN1-5
CN1-4
CN1-3
CN1-2
CN1-1
Notes:
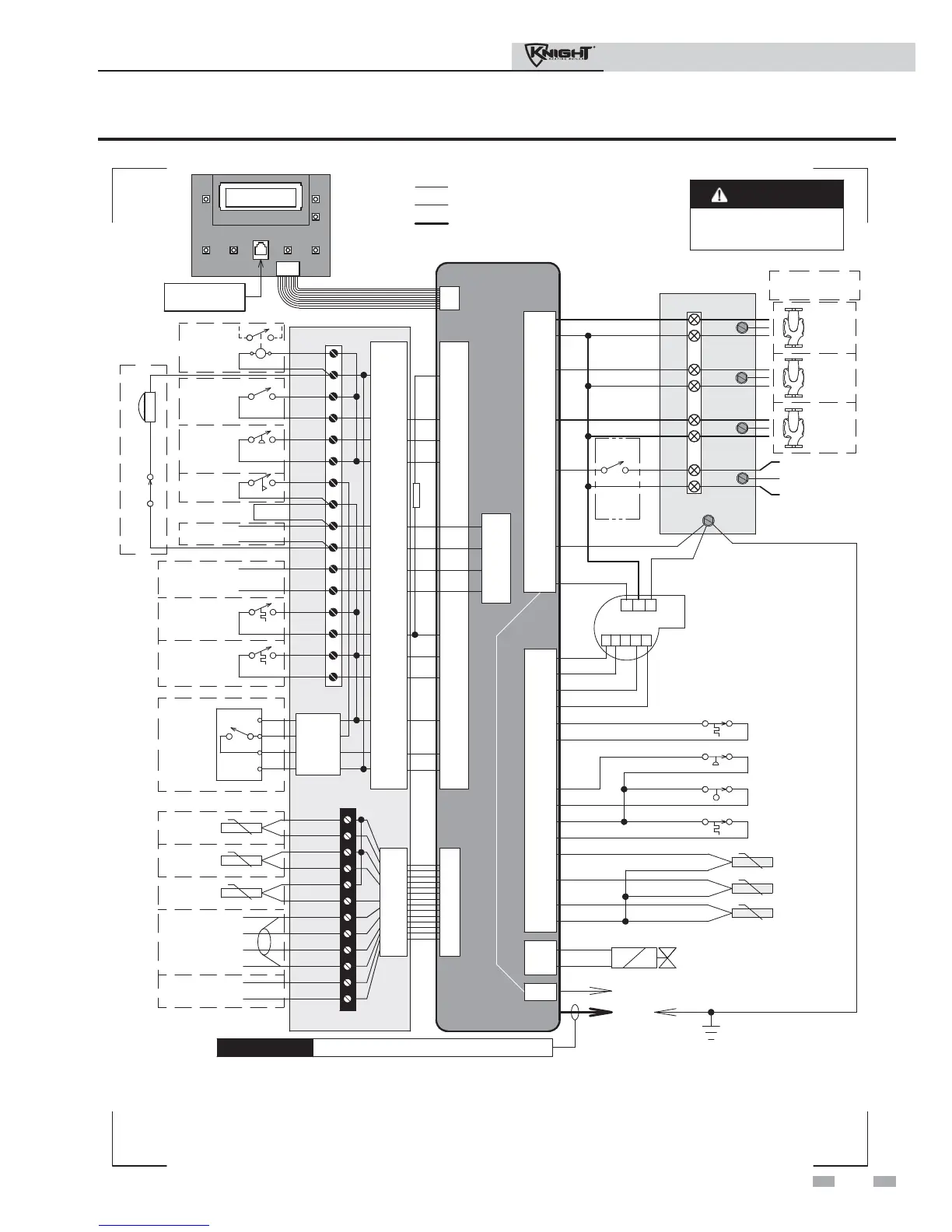
1. All wiring must be installed in accordance with: local, state, provincial and national code requirements per either N.E.C. in USA or C.S.A. in Canada.
2. If any original equipment wire as supplied with the appliance must be replaced, it must be replaced with wire having same wire gauge (AWG) and rated for a
minimum of 105°C. Exceptions: Replacement high voltage spark
lead and ribbon cables must be purchased from the factory. Use
of a non-approved spark lead
or ribbon cables can lead to operational problems which could result in non-repairable damage to the integrated controller or other components.
3. Actual connector block locations may vary from those shown on diagrams. Refer to actual components for proper connector block locations when using
diagrams to troubleshoot unit.
CN2-1
CN2-2
CN2-3
CN2-4
CN2-5
CN2-6
CN2-7
CN2-8
CN2-9
CN2-10
CN2-11
CN2-12
CN2-13
CN2-14
CN2-15
CN2-16
CN1
CN2
CN5
CN4
CN3
BELL JUMPER
ALARM BELL
SILENCING SWITCH
S6
S4
S5
S2
S1
S3
KB
MODELS
ONLY
AIR PRESSURE
SWITCH
OR
RESISTOR
Figure 13-2 Wiring Diagram
13 Diagrams (continued)

Table of Contents

Other manuals for Knight 80

Related product manuals