EasyManua.ls Logo

Kohler 10CCO

Kohler 10CCO
105 pages
To Next Page IconTo Next Page
To Next Page IconTo Next Page
To Previous Page IconTo Previous Page
To Previous Page IconTo Previous Page
Loading...
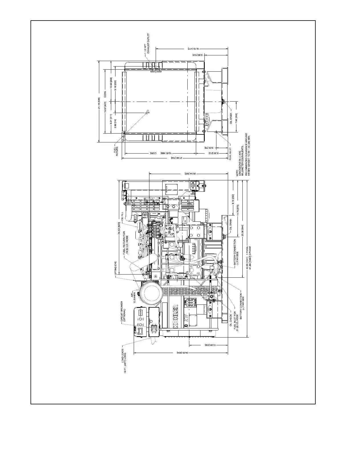
TP-5594 5/957-18 Installation Drawings
10CCO/CCOZ Inline-Radiator (Pusher Fan) Single- and Three-Phase Models
ADV-5968A-A
NOTE: Dimensions in ( ) are millimeter equivalents.

Table of Contents

Other manuals for Kohler 10CCO

Related product manuals