EasyManua.ls Logo

Kohler 11EFOZ - Generator Troubleshooting Guide (Continued); Generator Output and Separate Excitation

Kohler 11EFOZ
92 pages
To Next Page IconTo Next Page
To Next Page IconTo Next Page
To Previous Page IconTo Previous Page
To Previous Page IconTo Previous Page
Loading...
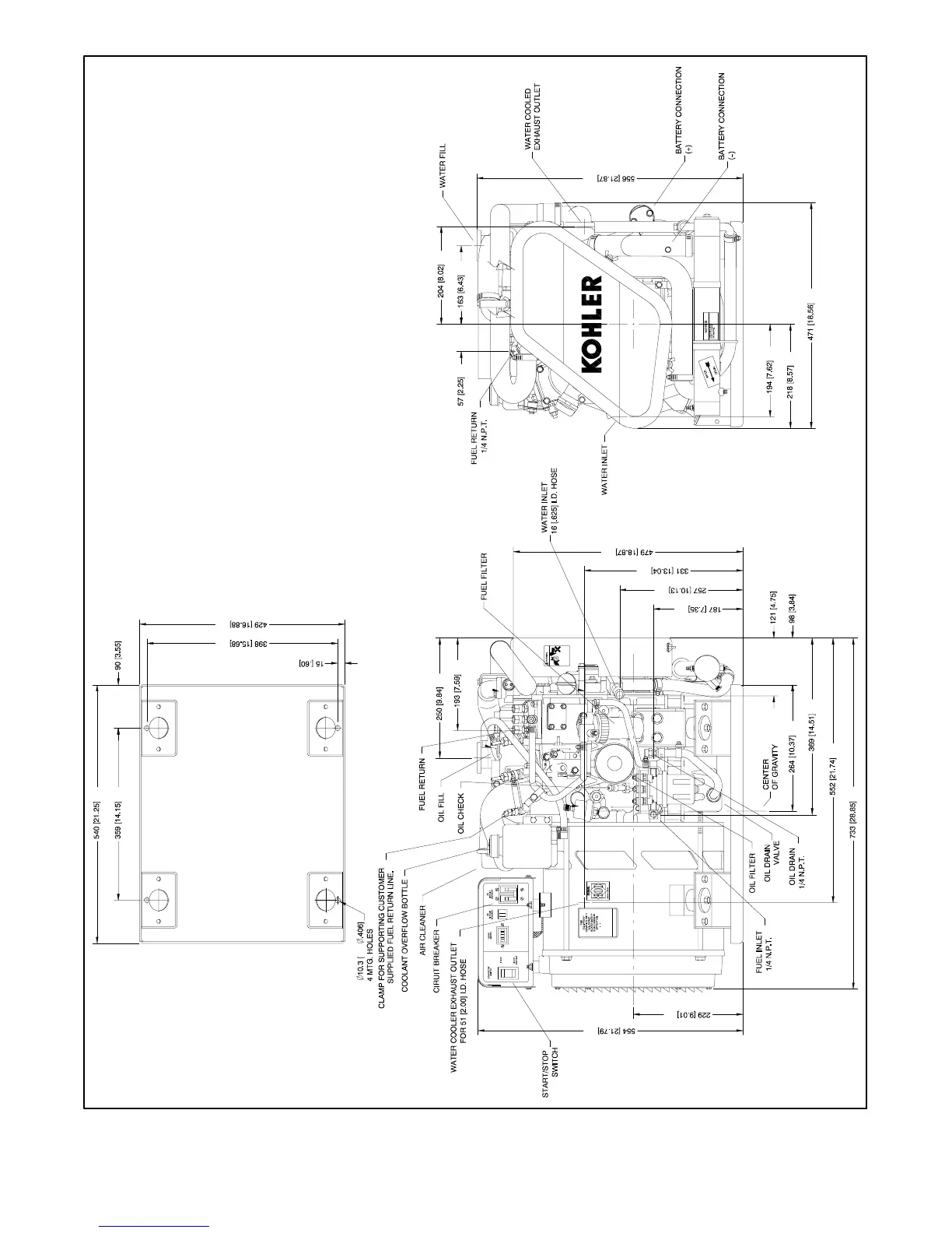
TP-6069 6/0332 Section 7 Installation Drawings
ADV-5850A-H
NOTE: Dimensions in [ ] are inch equivalents.
Figure 7-4 Dimension Drawing, 4EFOZ/5EOZ

Other manuals for Kohler 11EFOZ

Related product manuals