EasyManua.ls Logo

Kohler 11EKOZD

Kohler 11EKOZD
56 pages
To Next Page IconTo Next Page
To Next Page IconTo Next Page
To Previous Page IconTo Previous Page
To Previous Page IconTo Previous Page
Loading...
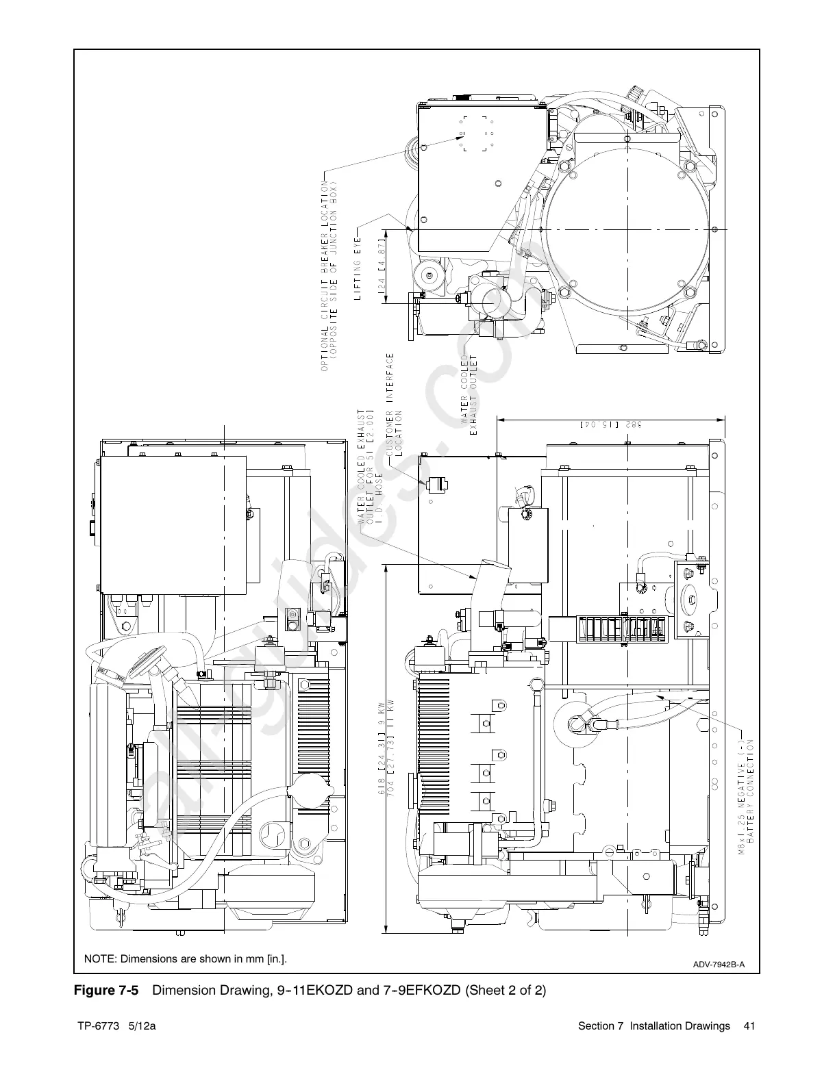
TP-6773 5/12a 41Section 7 Installation Drawings
ADV-7942B-A
NOTE: Dimensions are shown in mm [in.].
Figure 7-5 Dimension Drawing, 9--11EKOZD and 7--9EFKOZD (Sheet 2 of 2)
All manuals and user guides at all-guides.com
all-guides.com

Other manuals for Kohler 11EKOZD

Related product manuals