EasyManua.ls Logo

Kohler 14RESA

Kohler 14RESA
172 pages
To Next Page IconTo Next Page
To Next Page IconTo Next Page
To Previous Page IconTo Previous Page
To Previous Page IconTo Previous Page
Loading...
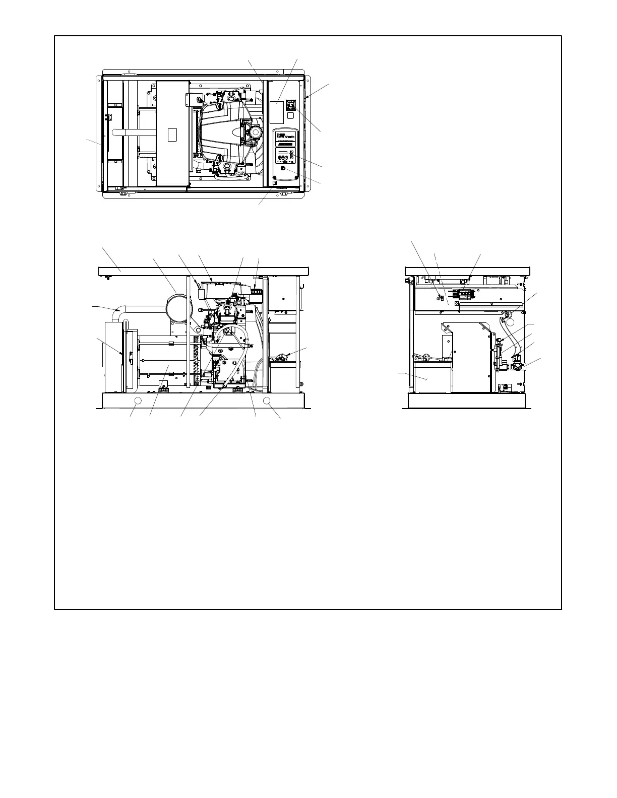
TP-6805 8/15 17Section 1 Specifications
1. 120 VAC receptacle for optional carburetor heater (not shown)
2. Nameplate location
3. Air intake
4. Line circuit breaker
5. RDC2 controller (revised controller shown)
6. USB connector (for firmware updates)
7. Mini-breaker (alternator protection)
8. Exhaust outlet
9. Roof, hinged and lockable
10. Muffler
11. Oil check (dipstick)
12. Air cleaner
13. Oil fill
14. Oil filter
15. Battery cables (included)
16. Lifting holes
17. Oil drain hose
18. Oil drain valve
19. Spark plugs
20. Alternator
21. Air intake
22. Exhaust pipe
23. Equipment ground
24. Start and run relay locations
25. Field-connection terminal block
26. Thermostat
27. Fuel orifice location (inside hose fitting)
28. Fuel regulator assembly
29. Fuel solenoid valve
30. Fuel inlet
31. Engine starting battery location (battery purchased separately)
27
30
28
1
3
10 12
25
29
ADV-8758
4
14
31
17
5
18
6
2
ENCLOSURE PANELS AND ROOF
REMOVED TO SHOW DETAIL
16
13
9
11
21
15
23
16
8
22
26
7
24
1920
Figure 1-3 Service Views, 20RESB and 20RESD

Table of Contents

Other manuals for Kohler 14RESA

Related product manuals