EasyManua.ls Logo

Kohler 15.5EOZ

Kohler 15.5EOZ
92 pages
To Next Page IconTo Next Page
To Next Page IconTo Next Page
To Previous Page IconTo Previous Page
To Previous Page IconTo Previous Page
Loading...
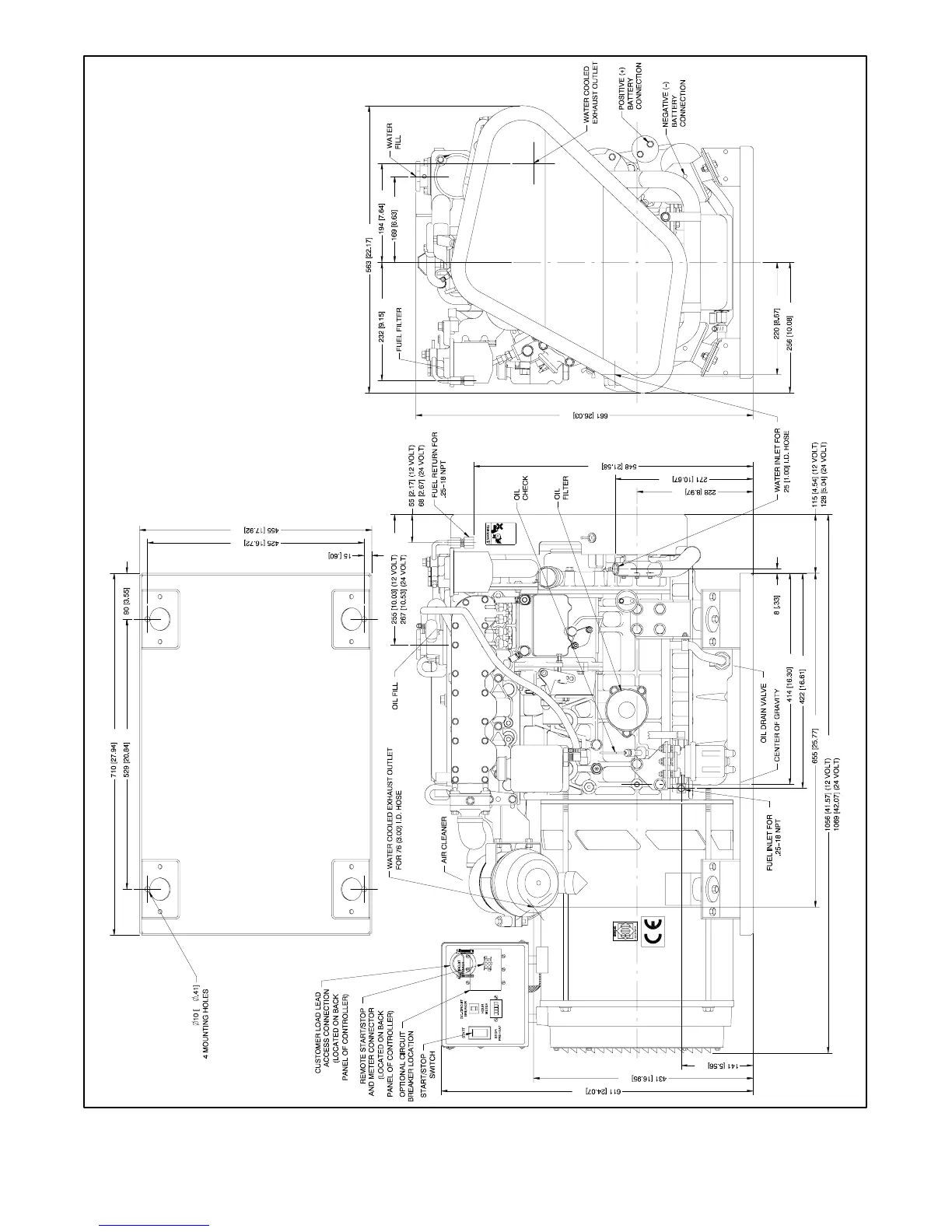
TP-6069 6/0342 Section 7 Installation Drawings
ADV-6481A-D
NOTE: Dimensions in [ ] are inch equivalents.
Figure 7-14 Dimension Drawing, 16/17.5EFOZ and 20EOZ

Other manuals for Kohler 15.5EOZ

Related product manuals