EasyManua.ls Logo

Kohler 17.5CCFOZ - Section 7. Installation Drawings

Kohler 17.5CCFOZ
109 pages
Print Icon
To Next Page IconTo Next Page
To Next Page IconTo Next Page
To Previous Page IconTo Previous Page
To Previous Page IconTo Previous Page
Loading...
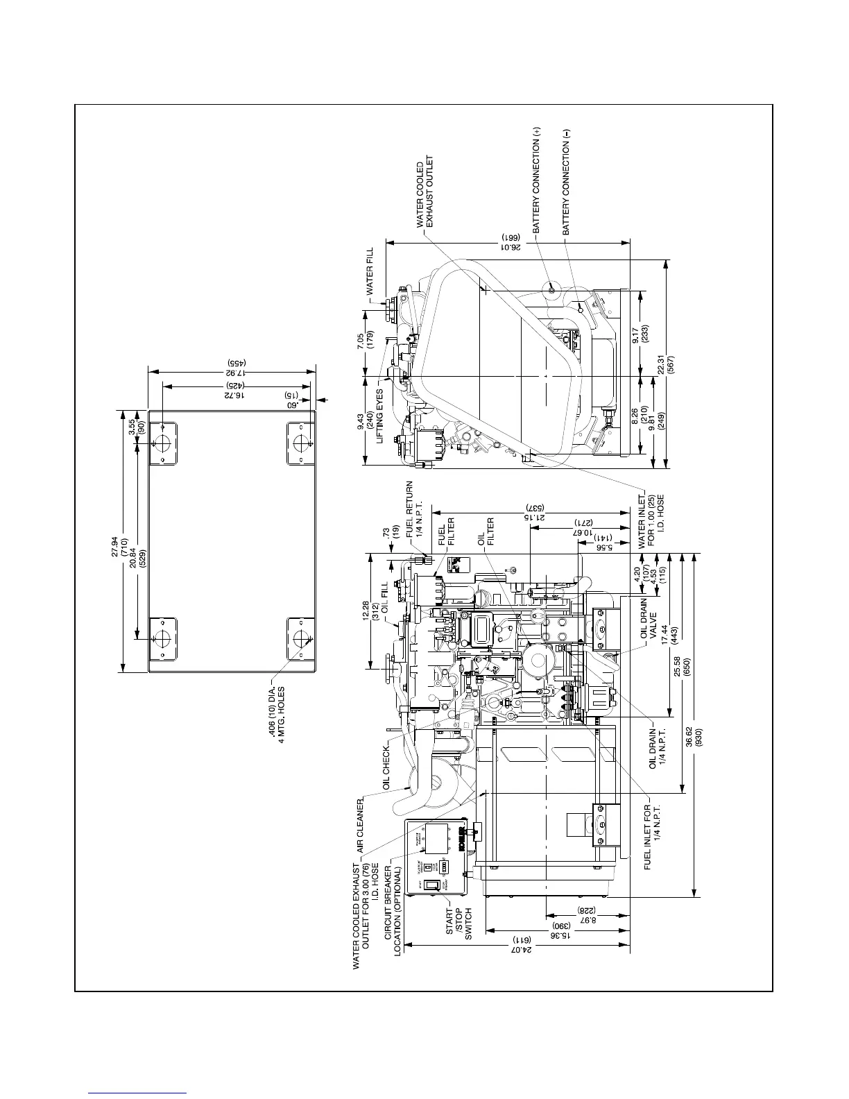
TP-5592 7/96 Installation Drawing 7-1
Section 7. Installation Drawings
ADV-5852-A
Figure 7-1. Dimension Drawing13.5/14CCOZ and 11/11.5CCFOZ

Table of Contents

Related product manuals