EasyManua.ls Logo

Kohler 17.5CCFOZ - Page 103

Kohler 17.5CCFOZ
109 pages
Print Icon
To Next Page IconTo Next Page
To Next Page IconTo Next Page
To Previous Page IconTo Previous Page
To Previous Page IconTo Previous Page
Loading...
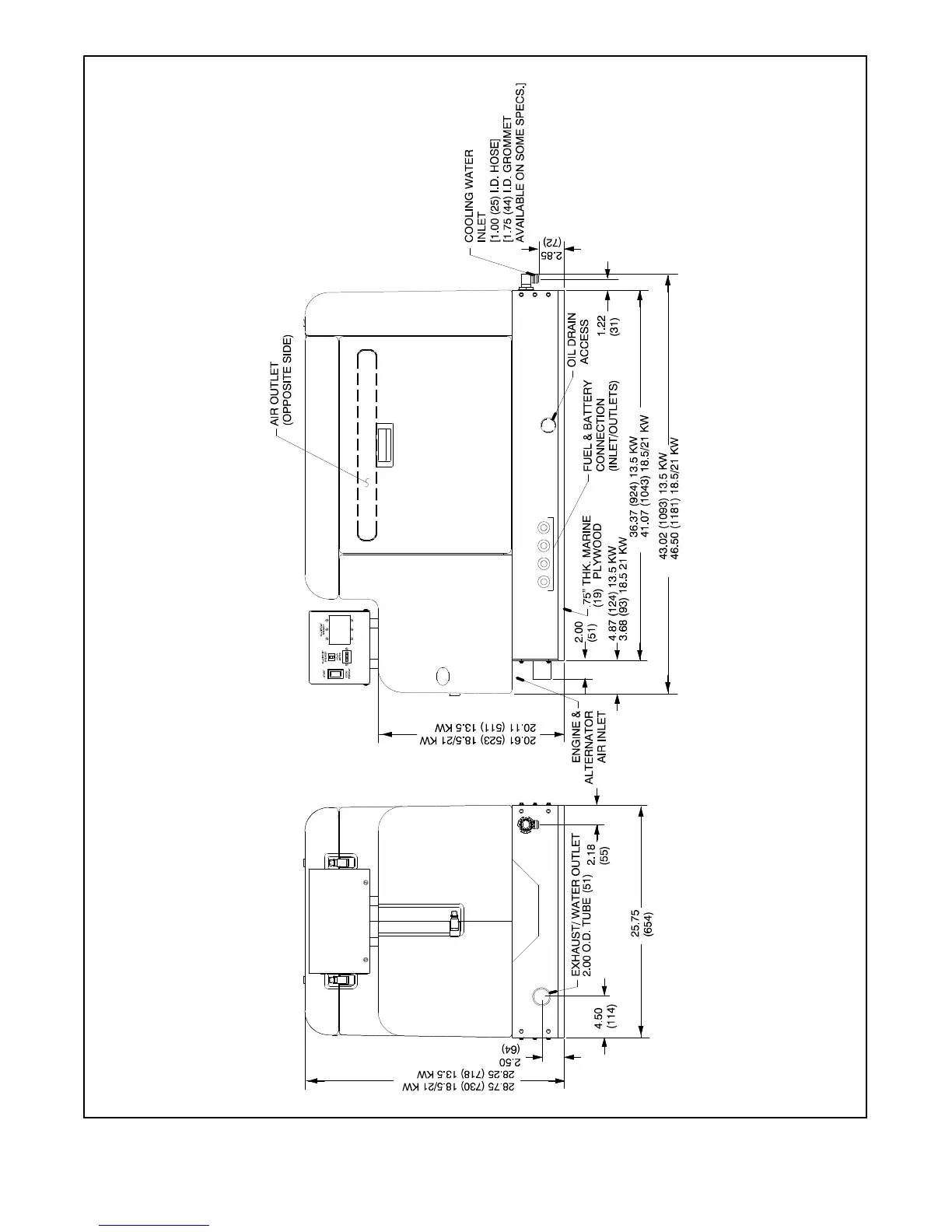
TP-5592 7/96 Installation Drawing 7-3
ADV-5841-B
Figure 7-3. Dimension DrawingAll Models

Table of Contents

Related product manuals