EasyManua.ls Logo

Kohler 23EKOZD - Page 320

Kohler 23EKOZD
360 pages
To Next Page IconTo Next Page
To Next Page IconTo Next Page
To Previous Page IconTo Previous Page
To Previous Page IconTo Previous Page
Loading...
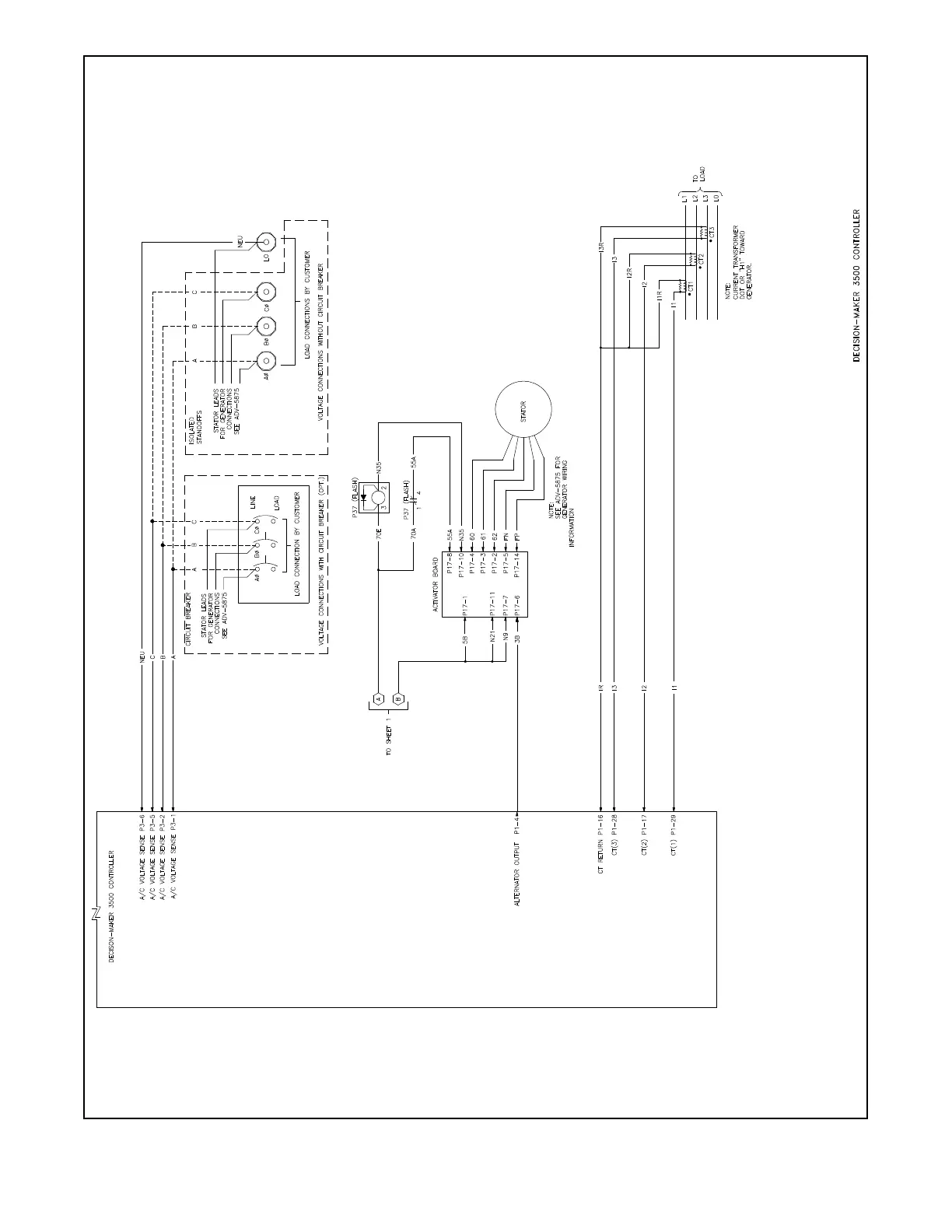
TP-6953 7/19320 Section 17 Wiring Diagrams
ADV8942B-B
Figure 17-32 Wiring Diagram, Schematic (Sheet 2 of 2) for 32EKOZD/28EFKOZD 24-V olt, Isolated Ground Models

Other manuals for Kohler 23EKOZD

Related product manuals