EasyManua.ls Logo

Kohler 99EOZ - Page 76

Kohler 99EOZ
92 pages
To Next Page IconTo Next Page
To Next Page IconTo Next Page
To Previous Page IconTo Previous Page
To Previous Page IconTo Previous Page
Loading...
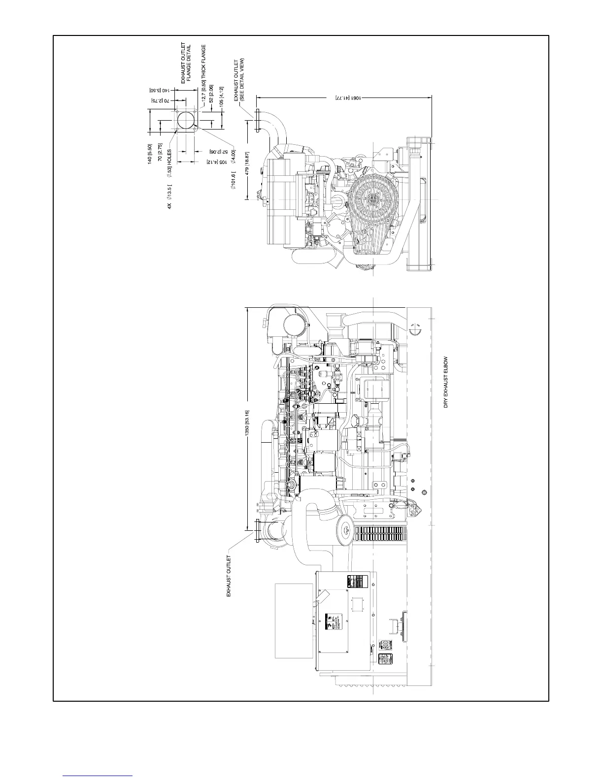
TP-6069 6/0366 Section 7 Installation Drawings
ADV-6594C-D
NOTE: Dimensions in [ ] are inch equivalents.
Figure 7-38 Dimension Drawing, 100/125EFOZ and 125/150EOZ with Dry Exhaust Elbow

Other manuals for Kohler 99EOZ

Related product manuals