EasyManua.ls Logo

Kohler Command PRO CH940 - Page 81

Kohler Command PRO CH940
88 pages
Print Icon
To Next Page IconTo Next Page
To Next Page IconTo Next Page
To Previous Page IconTo Previous Page
To Previous Page IconTo Previous Page
Loading...
81
Reassembly
62 690 01 Rev. J KohlerEngines.com
Install Cooling Fan and Debris Screen (Style A)
CAUTION
Failure to utilize or reassemble debris screen
as designed could result in debris screen
failure and serious personal injury.
1. Position cooling fan onto ywheel aligning mounting
locations. Apply a small amount of Loctite
®
243™
Threadlocker to threads and install long mounting
screws. Torque screws to 10.4 N·m (92 in. lb.).
2. Apply a small amount of Loctite
®
243™ Threadlocker
to external threaded section, (unless new parts with
preapplied locking compound are being used).
Thread debris screen hex studs into mounting holes
in ywheel. Torque each stud to 21.5 N·m
(190 in. lb.).
3. Install stiffener followed by metal debris screen onto
studs. Secure with special washers and mounting
screws using Loctite
®
243™ Threadlocker on
threads. Torque hex ange screws to 20.3 N·m
(180 in. lb.) and button head cap screws to 9.9 N·m
(88 in. lb.).
Install Metal Debris Screen (Style B)
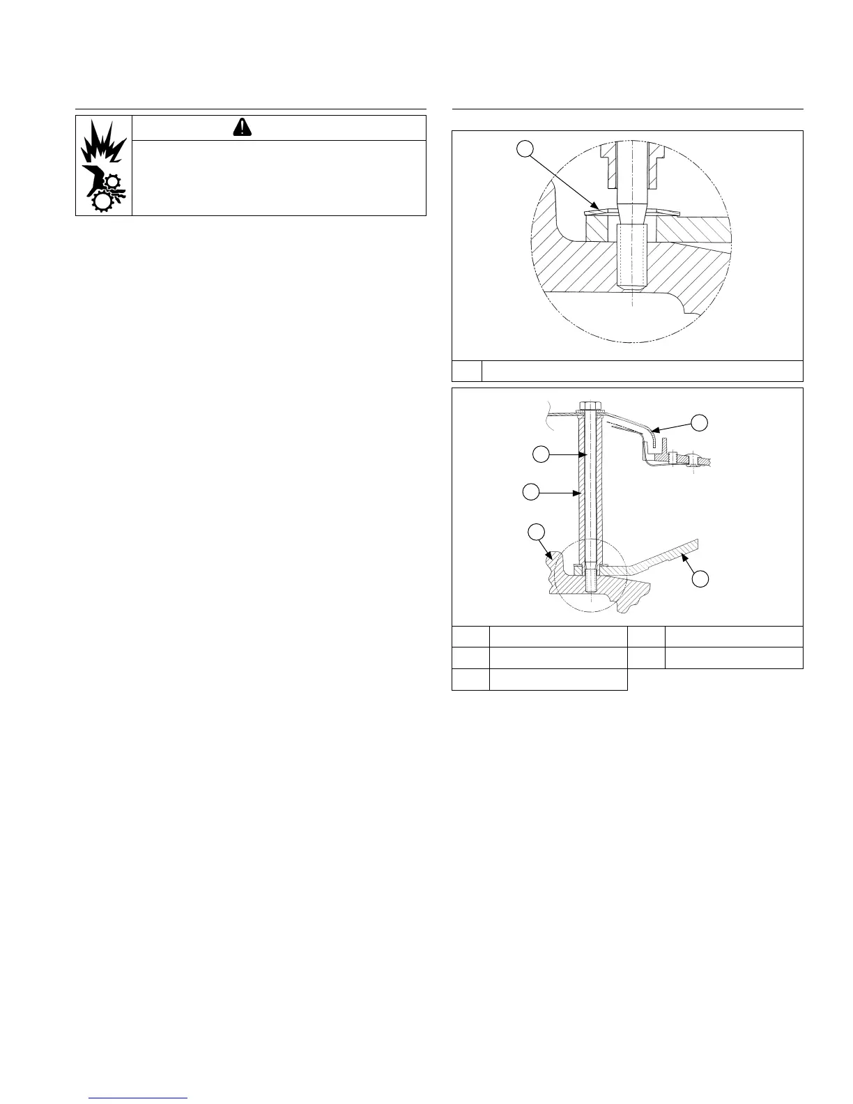
Spring Washer Details
A
A Spring Washer
A
B
C
D
E
A Metal Debris Screen B Fan
C Flywheel D Spacer
E Hex Bolt
1. Verify locating tabs on back of fan are inserted into
locating holes on ywheel.
2. To assist assembly, nd intake manifold studs with
M6 thread at least 100 mm in length to be used as
guide pins. Insert intake manifold studs through
cooling fan mounting holes and thread them 4 or 5
turns into ywheel.
3. Install a spring washer on each stud with concave
side down toward cooling fan.
4. Install a spacer on each stud with stepped end
down. Smaller diameter should extend through
spring washer and fan, so tip is resting on ywheel,
and shoulder is resting on spring washer
5. Install support ring on studs, so it is resting on
spacers. Then install metal screen on top of support
ring.
6. Install a plain washers on each of screws. Apply
Loctite
®
242
®
to screw threads.
7. Carefully remove studs and replace with screws.
Torque screws to 9.9 N·m (88 in. lb.). Repeat
procedure for other studs and screws.

Other manuals for Kohler Command PRO CH940

Related product manuals