EasyManua.ls Logo

Konecranes DMCS022 - Page 14

Konecranes DMCS022
31 pages
Print Icon
To Next Page IconTo Next Page
To Next Page IconTo Next Page
To Previous Page IconTo Previous Page
To Previous Page IconTo Previous Page
Loading...
9
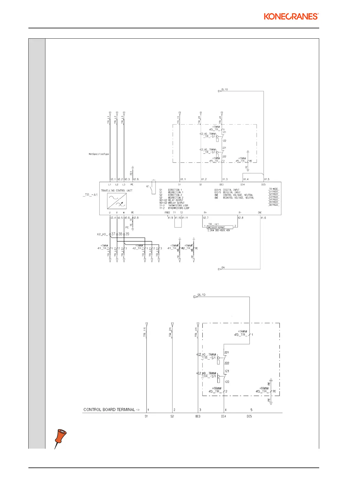
Connect the control wires according to the next instructions. Look at the original electrical drawings to
see how the original application is built. There are five different variations how control wires can be
connected.
Variation 1 - MS2+stop . EP2 or MS2 control with stop limit.
Figure 1. Old inverter + MS2 + stop
Figure 2. New inverter + MS2 + stop
Digital input 5 in DynA45 will be deactivated. No connection is needed.
020145en / Revision D / 2015-04-29
14/31
This document and the information contained herein, is the exclusive property of Konecranes Plc. and represents a non-public, confidential and proprietary trade secret that may not be
reproduced, disclosed to other parties, altered or otherwise employed in any manner whatsoever without the express written consent of Konecranes Plc.
Copyright
©
(2014) Konecranes Plc. All rights reserved.