EasyManua.ls Logo

koppel KV 24CC-ARF21 - Piping Diagrams

koppel KV 24CC-ARF21
144 pages
Print Icon
To Next Page IconTo Next Page
To Next Page IconTo Next Page
To Previous Page IconTo Previous Page
To Previous Page IconTo Previous Page
Loading...
Piping Diagrams
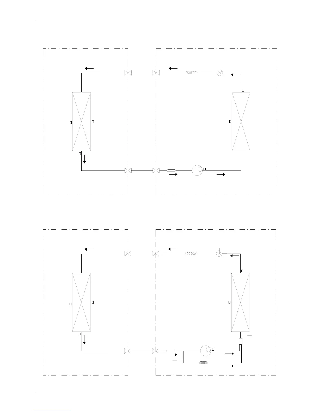
3. Piping Diagrams
KV24ODU-ARF21
INDOOR OUTDOOR
LIQUID SIDE
GAS SIDE
HEAT
EXCHANGE
(EVAPORATOR)
HEAT
EXCHANGE
(CONDENSER)
COMPRESSOR
T2B Evaporator
temp. sensor
outlet
T1 Room temp.
sensor
T3 Condenser
temp. sensor
T5 Discharge
temp. sensor
T4 Ambient
temp. sensor
Accumulator
Electronic
expansion valve
CAPILIARY TUBE
T2 Evaporator
temp. sensor
middle
Note: KV24ODU-ARF21 have no EXV.
KV36ODU-ARF21 / B, KV48ODU-ARF21B, KV60ODU-CRF21
INDOOR OUTDOOR
LIQUID SIDE
GAS SIDE
HEAT
EXCHANGE
(EVAPORATOR)
HEAT
EXCHANGE
(CONDENSER)
COMPRESSOR
T2B Evaporator
temp. sensor
outlet
T1 Room temp.
sensor
T3 Condenser
temp. sensor
T5 Discharge
temp. sensor
T4 Ambient
temp. sensor
Electronic
expansion valve
CAPILIARY TUBE
Oil return Capillary
Oil separator
High pressure
switch
Low pressure
switch
Accumulator
T2 Evaporator
temp. sensor
middle
Note: KV36ODU-ARF21 and KV36ODU-ARF21B have no EXV.
67

Table of Contents

Related product manuals