EasyManua.ls Logo

Kozi 100 - Typical Installation Configurations

Kozi 100
24 pages
Print Icon
To Next Page IconTo Next Page
To Next Page IconTo Next Page
To Previous Page IconTo Previous Page
To Previous Page IconTo Previous Page
Loading...
Page 10
C. When installed in a conventional or a mobile home, check for:
a. Clearance to combustibles. d. Power within 6 feet (1.8m)
b. Sufficient room to service the unit. e. Access for exhaust venting.
c. Access for outside combustion air. f. EVL not exceeding 25ft (7.6m)
See Exhaust Venting Require-
ments.
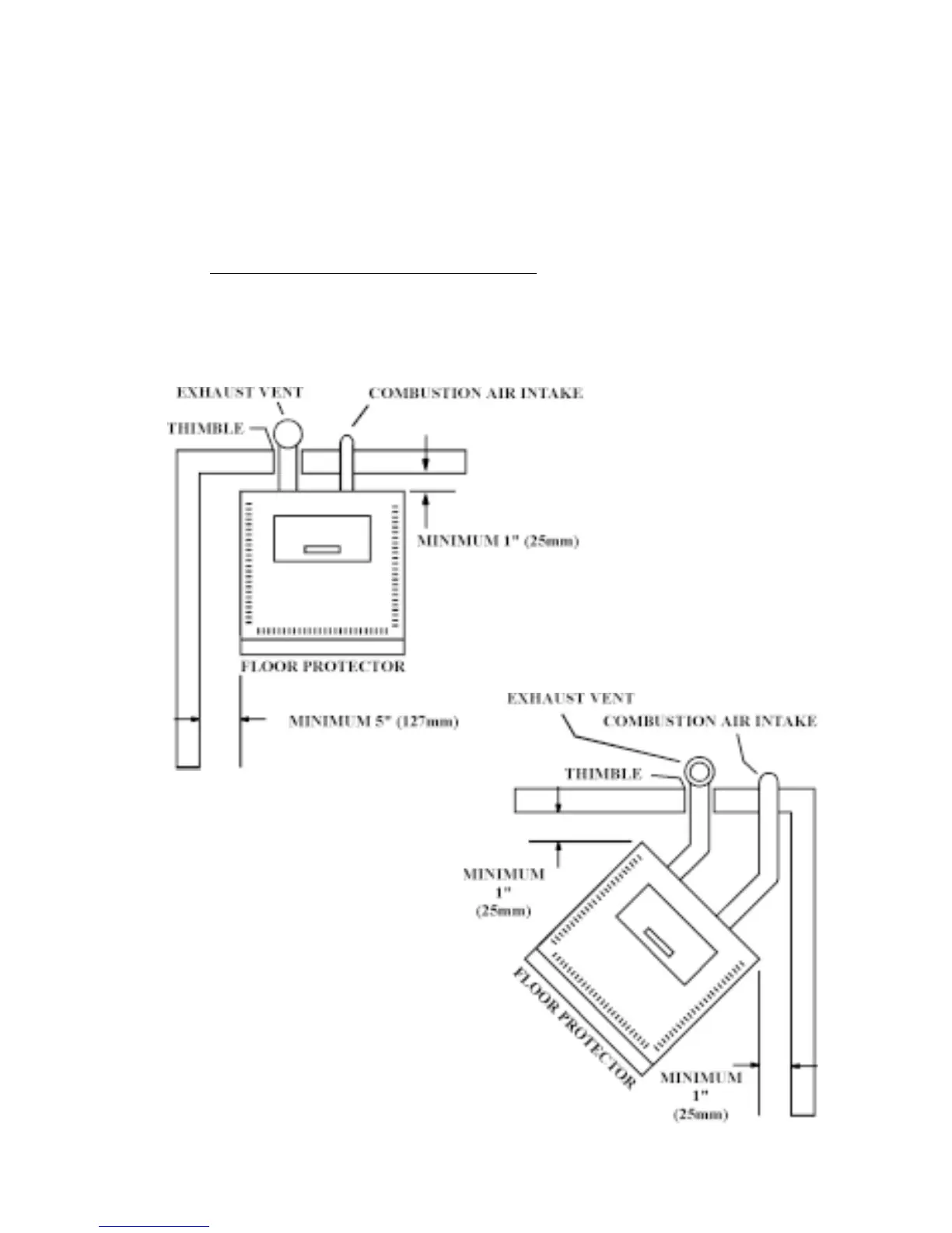
6. Typical Installation Configurations
The following figures describe some typical installations. Variations of these are
possible. Common sense, safety and compliance with local building codes must be
respected in any variation.
Typical floor plan - corner installation.

Other manuals for Kozi 100

Related product manuals