EasyManua.ls Logo

KSB BPD 302 - Horizontal Installation Procedures

KSB BPD 302
20 pages
Print Icon
To Next Page IconTo Next Page
To Next Page IconTo Next Page
To Previous Page IconTo Previous Page
To Previous Page IconTo Previous Page
Loading...
Submersible Motor Pumps (150 mm and above)
4
Fig. 4 : Installed Pumpset
5.0 Horizontal Installation
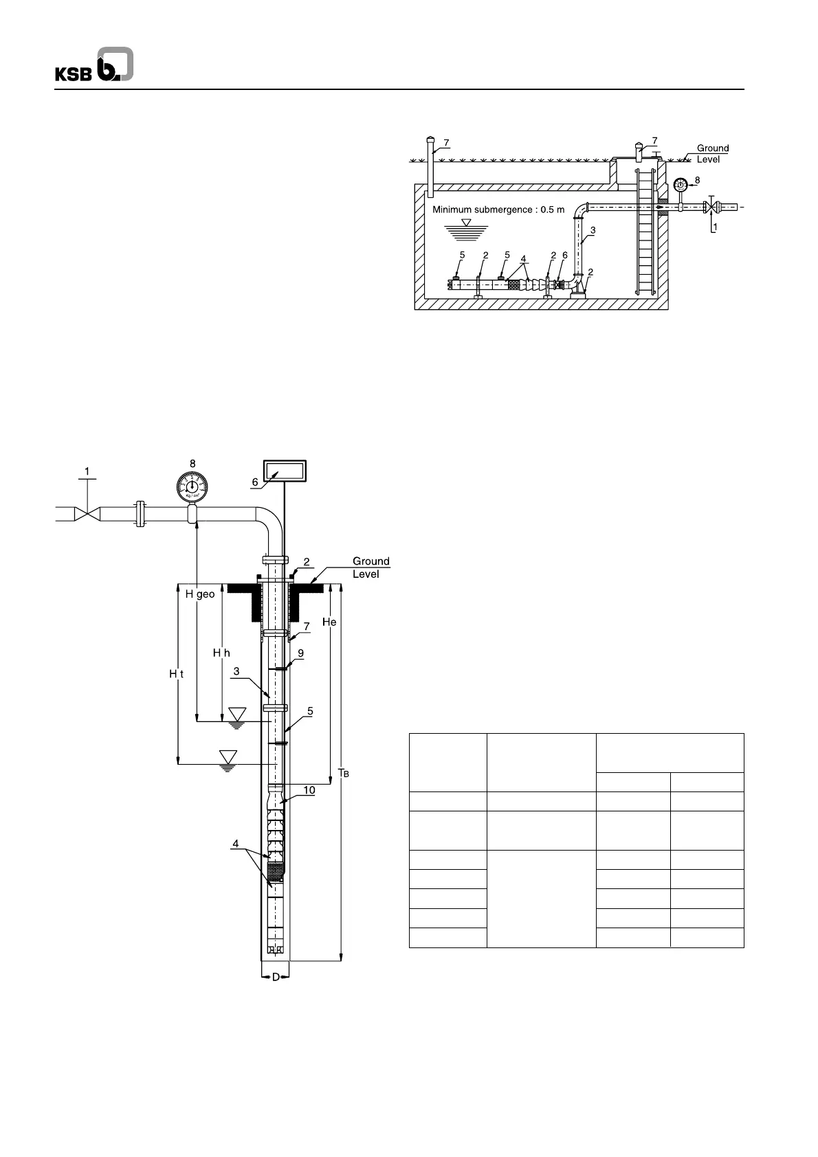
Fig .3 shows the installation and suspension of the pumpset.
The first section of the pipe, to which a pair of mounting clamps
is to be fixed at a suitable height, is connected to the pumpset.
The pumpset is hanged by means of pulley block. It is then
lowered until the second mounting clamps rest on the edge of
the well. Successive lengths of the pipes are added in the same
way to reach the necessary installation depth. (The threaded
pipe section must be firmly tight and if necessary locking device
fitted so that the pumpset will not fall into the well)
Installation depth to be selected in such a way that the motor
should never run dry even when the water level reaches to its
lowest level. (i.e. draw down of bore well capacity). The
minimum water level should be 0.5 m above the top of the non-
return valve.
During installation the cable must not be subjected to any of
distortion or strain. The power supply cable should be fixed to
the riser pipe by means of Rubber Band at a distance of approx.
3 meter. The Rubber Band must grip the cable firmly enough to
prevent its slipping down under its own weight. Also the opening
should be provided in the in the pipe flange for cable entry to
avoid the cable rubbing against the wall of borewel. Also refer
Fig. 4 for installation.
1. Discharge valve
2. Supporting clamp
3. Riser pipe
4. Submersible motor-pump set
5. Power supply cable
6. Starter
7. Slotted Casing pipe
(Length up to soft rock level)
8. Pressure Gauge
9. Cable clamp
10. Non return valve
Fig. 5 : Horizontal installed pumpset (in tank or pit)
1. Control Valve
2. Support
3. Riser Pipe
4. Submersible Pumpset
5. Water reservoir for Motor
6. Expansion Joint
7. Ventilation
8. Pressure gauge
Note : The horizontal installation of submersible pumpset
is required to be equipped with two storage tanks to maintain
water level in the motor. Contact Authorized Dealer / nearest
KSB Office for such installation.
For horizontal installation, support system & intallation to be
made as shown in the fig. 5.
To align pump-motor, provide sufficient metallic packing in
the foundation itself. To attain precise alignment, minor shims
up to 2 mm thick (M. S.) sheet can be used.
Such installed pumpset shall be either perfectly horizontal
or maximum 5 degree inclination with motor down and pump
side lifted up from the ground. Precise tightening of foundation
bolts has to be done at the final stage.
Refer Table No. 5 for limits of Horizontal Installation.
Pump Motors
Max. stages allowed for
horizontal execution
50 Hz 60 Hz
UQD 112 UMA I 150 10 10
UQD 152
UMA I / G 150
10 10
UMA I 100
UQD 182 10 10
UQD 212 10 10
BPD 242 UMA I / G 150 8 8
BPD 273 7 7
BPD 302 7 7
Table No. : 5 Horizontal execution limits for submersible
pumpset
Note : On no account, the pumpset should rest on the bottom
of the bore well. The pumpset should be installed in such a way
that no silting or sanding can occur in the region of the motor,
as this would seriously impair the heat dissipation from the
motor.
D = Well diameter
T
B
= Well depth
H
e
= Installation depth
H
h
= Stationary water level
H
t
= Operation water level
H
geo
= Geostatic head
Ht - Hh = Drawdown

Table of Contents

Related product manuals