EasyManua.ls Logo

KTR-Group ROTEX GS - Page 7

KTR-Group ROTEX GS
40 pages
Print Icon
To Next Page IconTo Next Page
To Next Page IconTo Next Page
To Previous Page IconTo Previous Page
To Previous Page IconTo Previous Page
Loading...
ROTEX
®
GS
Operating/Assembly instructions
KTR-N
Sheet:
Edition:
45510 EN
7 of 40
23
Please observe protection
note ISO 16016.
Drawn:
2020-02-10 Pz/Ht
Replacing:
Verified:
2020-02-10 Pz
Replaced by:
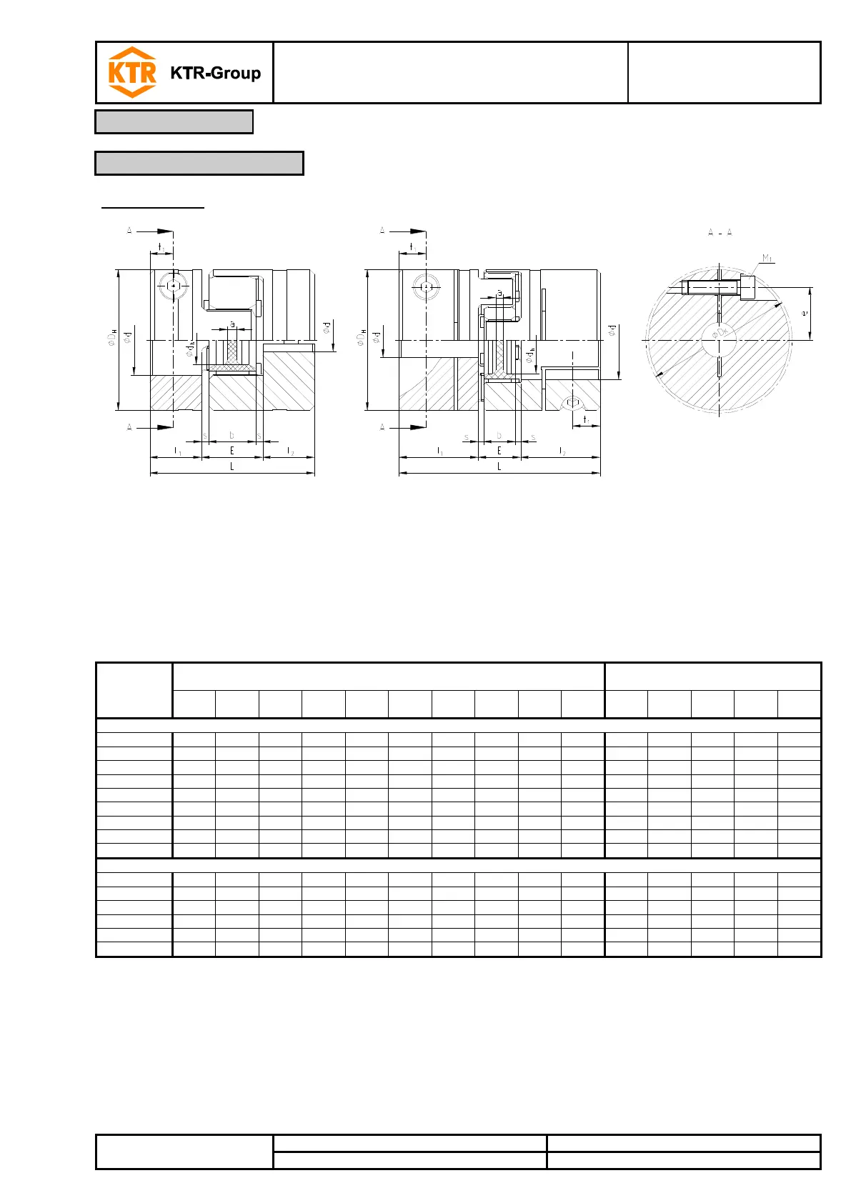
Clamping hubs
Illustration 4: ROTEX
®
GS
hub type 2.0 (from size 5 - 14)
Illustration 5: ROTEX
®
GS
hub type 2.5 (from size 19 - 90)
Please refer to table 1 for torques and table 2 for finish bores.
Table 4: Dimensions - clamping hubs
Size
Dimensions
3)
[mm]
Clamping screw DIN EN ISO 4029
(ROTEX
®
GS 5 - DIN EN ISO 1207)
D
D
H
d
H
L
l
1
, l
2
M, N
E
b
s
a
M
1
t
1
e
D
K
T
A
[Nm]
Hub material - aluminium
5
-
10
-
15
5
-
5
4
0.5
4.0
M1.2
2.5
3.5
11.4
-
1)
7
-
14
-
22
7
-
8
6
1.0
6.0
M2
3.5
5.0
16.5
0.37
9
-
20
7.2
30
10
-
10
8
1.0
1.5
M2.5
5.0
7.5
23.4
0.76
12
-
25
8.5
34
11
-
12
10
1.0
3.5
M3
5.0
9.0
27.5
1.34
14
-
30
10.5
35
11
-
13
10
1.5
2.0
M3
5.0
11.5
32.2
1.34
19
-
40
18
66
25
-
16
12
2.0
3.0
M6
2)
11.0
14.5
2)
46.0
10.5
2)
24
-
55
27
78
30
-
18
14
2.0
3.0
M6
10.5
20.0
57.5
10.5
28
-
65
30
90
35
-
20
15
2.5
4.0
M8
11.5
25.0
73.0
25
38
-
80
38
114
45
-
24
18
3.0
4.0
M8
15.5
30.0
83.5
25
Hub material - steel
42
85
95
46
126
50
28
26
20
3.0
4.0
M10
18
32.0
93.5
69
48
95
105
51
140
56
32
28
21
3.5
4.0
M12
21
36.0
105.0
120
55
110
120
60
160
65
37
30
22
4.0
4.5
M12
26
42.5
119.5
120
65
115
135
68
185
75
47
35
26
4.5
4.5
M12
33
45.0
124.0
120
75
135
160
80
210
85
53
40
30
5.0
5.0
M16
36
51.0
147.5
295
90
160
200
104
245
100
62
45
34
5.5
6.5
M20
40
60.0
176.0
580
1) Slotted screw, tightening torque not defined
2) Size 19: Bore Ø22 - Ø24 with 2-off clamping screws M4, T
A
= 2.9 Nm and dimension e = 15.0
3) Transmittable friction torques of clamping hubs see table 5
1 Technical data
1.3 Coupling dimensions