EasyManua.ls Logo

KTR-Group ROTEX GS - 1.3 Coupling dimensions

KTR-Group ROTEX GS
40 pages
Print Icon
To Next Page IconTo Next Page
To Next Page IconTo Next Page
To Previous Page IconTo Previous Page
To Previous Page IconTo Previous Page
Loading...
ROTEX
®
GS
Operating/Assembly instructions
KTR-N
Sheet:
Edition:
45510 EN
6 of 40
23
Please observe protection
note ISO 16016.
Drawn:
2020-02-10 Pz/Ht
Replacing:
Verified:
2020-02-10 Pz
Replaced by:
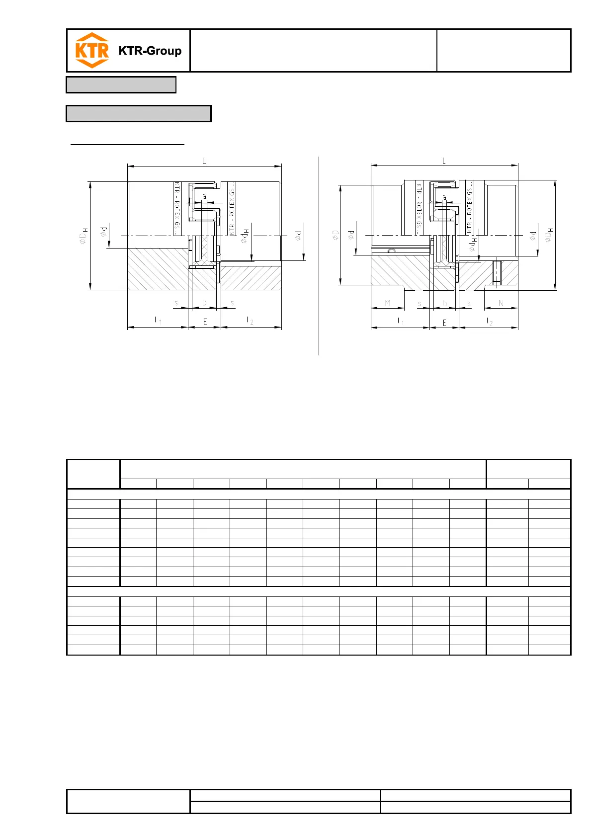
Standard shaft coupling
Illustration 2: ROTEX
®
GS
(size 5 - 38)
Illustration 3: ROTEX
®
GS
(size 42 - 90)
Please refer to table 1 for torques and table 2 for finish bores.
Table 3: Dimensions - Standard shaft coupling
Size
Dimensions [mm]
Setscrew
DIN EN ISO 4029
D
D
H
d
H
L
l
1
, l
2
M, N
E
b
s
a
G
t
Hub material - aluminium
5
-
10
-
15
5
-
5
4
0.5
4.0
M2
2.5
7
-
14
-
22
7
-
8
6
1.0
6.0
M3
3.5
9
-
20
7.2
30
10
-
10
8
1.0
1.5
M4
5.0
12
-
25
8.5
34
11
-
12
10
1.0
3.5
M4
5.0
14
-
30
10.5
35
11
-
13
10
1.5
2.0
M4
5.0
19
-
40
18
66
25
-
16
12
2.0
3.0
M5
10
24
-
55
27
78
30
-
18
14
2.0
3.0
M5
10
28
-
65
30
90
35
-
20
15
2.5
4.0
M8
15
38
-
80
38
114
45
-
24
18
3.0
4.0
M8
15
Hub material - steel
42
85
95
46
126
50
28
26
20
3.0
4.0
M8
20
48
95
105
51
140
56
32
28
21
3.5
4.0
M8
20
55
110
120
60
160
65
37
30
22
4.0
4.5
M10
20
65
115
135
68
185
75
47
35
26
4.5
4.5
M10
20
75
135
160
80
210
85
53
40
30
5.0
5.0
M10
25
90
160
200
104
245
100
62
45
34
5.5
6.5
M12
30
1 Technical data
1.3 Coupling dimensions