EasyManua.ls Logo

la Minerva C/E INS 22 - Page 23

Default Icon
28 pages
Print Icon
To Next Page IconTo Next Page
To Next Page IconTo Next Page
To Previous Page IconTo Previous Page
To Previous Page IconTo Previous Page
Loading...
23
POS. ARCH.:
1
2
3 6745 8
A
B
C
D
E
F
A
B
C
D
E
F
DENOMINAZIONE: DESCRIZIONE:
MODIFICHE:
A
B
C
D
E
F
G
DATA:
PROPRIETA’ INTERNA - RIPRODUZIONE VIETATA
DISEGNO N°:
DISEGNATORE:
NOTE:
FOGLIO:
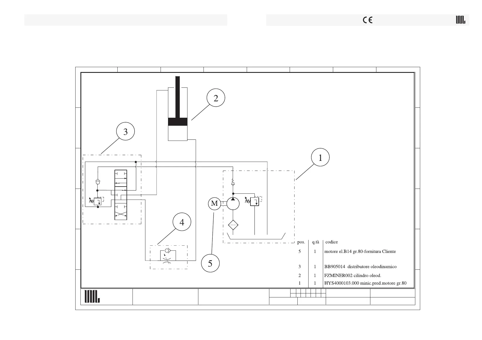
SCHEMA OLEODINAMICO
09/11/08 A.S.C. / L.B.
-
1 DI 1
la Minerva
®
C/E INS22 - C/E INS32 - C/E INS50
Schema oleodinamico /Oleodinamic Power Diagram / Schéma olèodinamique
8IN20542 Regolatore flusso 1/4” gas
4
1
di Chiodini Mario s.r.l.
Bologna - Italy

Related product manuals