EasyManua.ls Logo

Laars Mighty Therm - General Information; 1.1 Introduction; 1.2 Heater Identification; 1.3 General Water Flow Requirement

Laars Mighty Therm
36 pages
Print Icon
To Next Page IconTo Next Page
To Next Page IconTo Next Page
To Previous Page IconTo Previous Page
To Previous Page IconTo Previous Page
Loading...
Mighty Therm Lo-Nox
Page 3
SECTION 1.
General Information
1.1 Introduction
This manual provides information for the
installation and operation of Laars gas-fired hydronic
boilers and water heaters. It is strongly recommended
that all application and installation procedures be
reviewed completely before proceeding with the
installation. Consult the Laars factory, or local factory
representative with any problems or questions
regarding this equipment. Experience has shown that
most problems are caused by improper installation, not
system design.
Some accessory items are shipped in separate
packages. Verify receipt of all items listed on the
package slip. Inspect everything for possible damage
upon delivery, and inform the carrier of any shortages
or impairments. Any such claims should be filed with
the carrier. The carrier, not the shipper, is responsible
for shortages and damage to the shipment whether
visible or concealed.
IMPORTANT WARNING
The Laars heaters must be installed in
accordance with the procedures outlined in this
manual. The warranty does not apply to boilers not
installed or operated in accordance with these
procedures. Consult local building and safety codes
before proceeding with work. The installation must
conform to the requirements of the authority having
jurisdiction or, in the absence of such requirements, to
the latest edition of the National Fuel Gas Code; ANSI
Z223.1, National Electrical Code ANSI/NFPA 70 and/
or in Canada CAN 1 -13149 requirements.
When required by the authority having
jurisdiction, the installation must conform to
American Society of Mechanical Engineers safety
codes for controls and safety devices for automatically
fired boilers No. CSD-1, and in Canada CGA 3.3. Any
modification to the boiler, its gas controls, gas
orifices, wiring or draft diverter may void the Laars
warranty. If field conditions require such
modifications, consult factory.
1.2 Heater Identification
Consult rating plate on the boiler. The following
example simplifies the boiler identification.
1 2 3456
PH 1430 I N 21 K
(1) Basic heater model (see descriptions below).
(2) Input rate X 1000 BTU/h.
(3) Indoor (I) or Outdoor (E) installation.
(4) Gas type: Natural (N).
(5) Ignition system: (21) Hot surface (proved igniter)
ignition system.
(6) Firing modes:
On/Off (C)
2-stage (K)
Model PH hydronic heating boilers come with
integrally mount pumps. Pumps are sized for pressure
drop through the heat exchanger only.
Model PW water heaters for use with separate
storage tank come with integrally mount pumps.
Pumps are sized for pressure drop through the heat
exchanger plus 30 feet (9.1m) of pipes and normal
fitting.
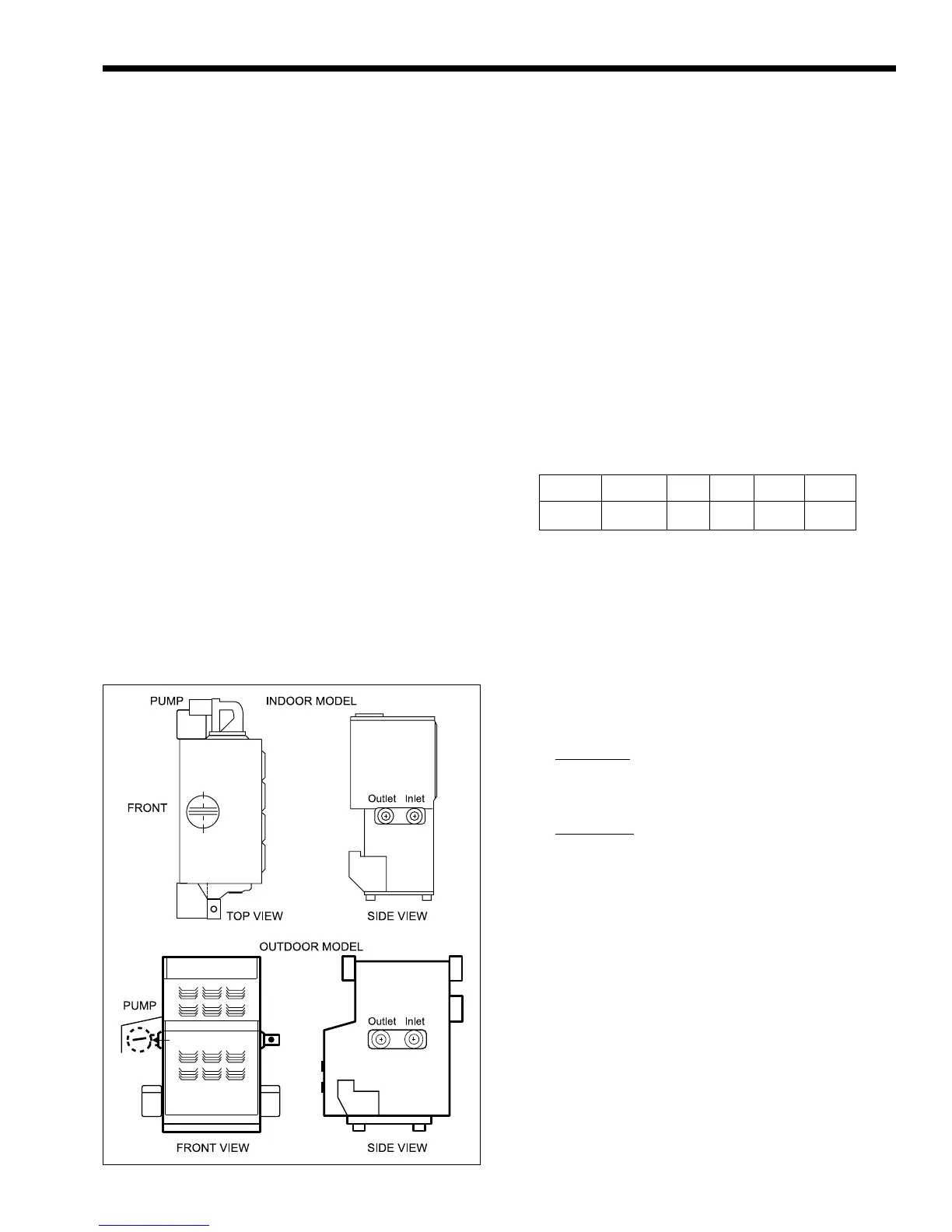
Laars heaters are available in two configurations:
an indoor version and an outdoor version. Both are
available from the factory (see Figure 1).
1.3 General Water Flow Requirement
For proper operation, all low volume hot water
heaters must have continuous flow through the heat
exchanger when firing. The system pump must be
capable of developing sufficient pressure to overcome
the resistance of the heater plus the entire circulating
system at the designed flow rate.
Figure 1. Boiler Configuration.

Table of Contents

Related product manuals