EasyManua.ls Logo

LABEL-AIRE Write-up 3138NV-DAT - TAMP INTERRUPT SENSOR

LABEL-AIRE Write-up 3138NV-DAT
53 pages
Print Icon
To Next Page IconTo Next Page
To Next Page IconTo Next Page
To Previous Page IconTo Previous Page
To Previous Page IconTo Previous Page
Loading...
46
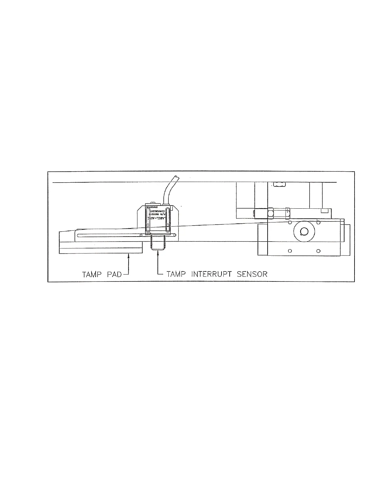
TAMP INTERRUPT SENSOR
Normally,thesidetampisnotfullyextendedwhentheairblasttransfersthelabelontothe
product.TheTampInterruptSensorcanbeusedtopreventthetamppadfromcollidingwith
theproductwhenlabelingproductsofdifferentsizes,orwhenproductsarepresentedin
variouspositionsrelativetotheapplicator.
Whenthetampextendsandencounterstheproductbeforethetamphasfullyextended,the
TampInterruptSensordetectstheproducts.Whenthetampinterruptsensordetectsthe
product,theaircylinderisswitchedofftoreturnthetampandtheairblastisinitiatedtoapply
thelabel.
Figure15TampInterruptSensor